
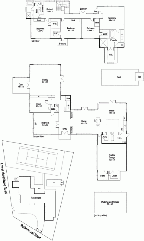
Big land and a big home, well positioned on the block. The home is worth in isolation a greater price than what it will achieve - meaning if it was in a side street, even 150 metres away then the value as seen by buyers, would be greater.
Why? Road noise. The issue is not easily fixable as the upstairs appears to be of lightweight construction, meaning the noise will come through the wall, even if double glazing is present.
1 Rotherwood is a very good, bright, free flowing family home in a compromised spot - how much do you pay? Nobody knows that for sure - the seller doesn't, the buyer doesn't and the agents don't - so therefore the price is probably more about the process at the end than the perceived value at the beginning.
Your enquiry has been successfully submitted.
You will be hearing from us soon!
Please ensure that you have entered your name, phone number, email address and selected at least one of our services!
|
0
Bedroom
|
0
Bathroom
|
0
Parkings
|
1,882sqm
Land Area
|
|
| Floor Plan | Agent |
Passed In - 3:00pm Aug 2 2014 |
Quote $2,500,000 - $2,700,000 |
|
Your enquiry has been successfully submitted.
You will be hearing from us soon!
Please ensure that you have entered your name, phone number, email address and selected at least one of our services!