

 
                                        
                                
                 
                
            On paper, or should I say on the net -10 Charlotte looks an interesting offering - big land, exciting looking reno in a little pocket that has few sales but is close to everything.
Upon arrival the hard questions are - out the back of the theatre and road noise from Dandenong Road - for me they didn't seem deal breakers - but each to his own.
On the positive side if you had a child(ren) at St Michael's then you can wind them up and point - as school is in the next street.
If you had older daughters, then they will love you for a year oor more as the Chapel St fashion and groove mecca is walking distance. Of course Chapel St isn't all for the younger generation - movies, restaurants and shops are a plenty - the agents advertising is true on this point.
If you are more alternative, then down to Carlisle Street for breakfast, lunch or dinner and the CBD and train is super close.
If you don't think the location is convenient then there is no pleasing you.
I really like the cul de sac - no traffic flow.
And so to the home - either side are flats - but if that's a worry, then St Kilda is not for you.
The Victorian facade and entrance is for me the weakest part of the home - get some greenery and liven the colors up a bit and this home is a lot more attractive on first glance and would match the WOW factor of the rear.
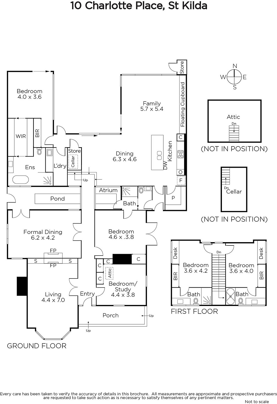
Going through the home for me it's near faultless if you want modern family living - I could argue the bedrooms are less than generous - but they are still good and hey isn't life more than a full time doona.
The living spaces are what this home is all about - the architecture, the transitions from old to new via the "moat", the light, flow and the spaces work for me.
Plenty of bathrooms and wet areas seem to be built to a high standard.
Like the rear garden - so unusual, in terms of size (a flow on from the landsize which is big for this part of the world)
Parking, sure its tandem but anything in St Kilda is good.
The Position P is a tick for me on the macro - the micro, well that's your call. The Property P of land and building is hard to fault and so we come to the Price P.
The determining factors on the Price P are rarity of this offering in this location, sheer land size and the quality of the home - combined with a very strong market right now, a real lack of family home stock and this sort of WOW factor just before Christmas after a tough year for buyers - all point to a very competitive auction and possibly some magic numbers.
Your enquiry has been successfully submitted.
You will be hearing from us soon!
Please ensure that you have entered your name, phone number, email address and selected at least one of our services!
| 5 Bedroom | 4 Bathroom | 4 Parkings | 
                                                                    656sqm
                                                             Land Area | |
| Floor Plan | Agent | Sold - 2:30 PM Nov 19 2016 | Quote $3,500,000 - $4,000,000 | North Facing | 
 
         
        Your enquiry has been successfully submitted.
You will be hearing from us soon!
Please ensure that you have entered your name, phone number, email address and selected at least one of our services!