
On first look it's nothing spectacular and it's a double storey south-facing rear. On a second look - I still felt the same.
Dollars - this to me is land value with a free modern home. If it's not, then you can do better.
For full report with ratings, values and bidding strategies contact Mal James
Your enquiry has been successfully submitted.
You will be hearing from us soon!
Please ensure that you have entered your name, phone number, email address and selected at least one of our services!
|
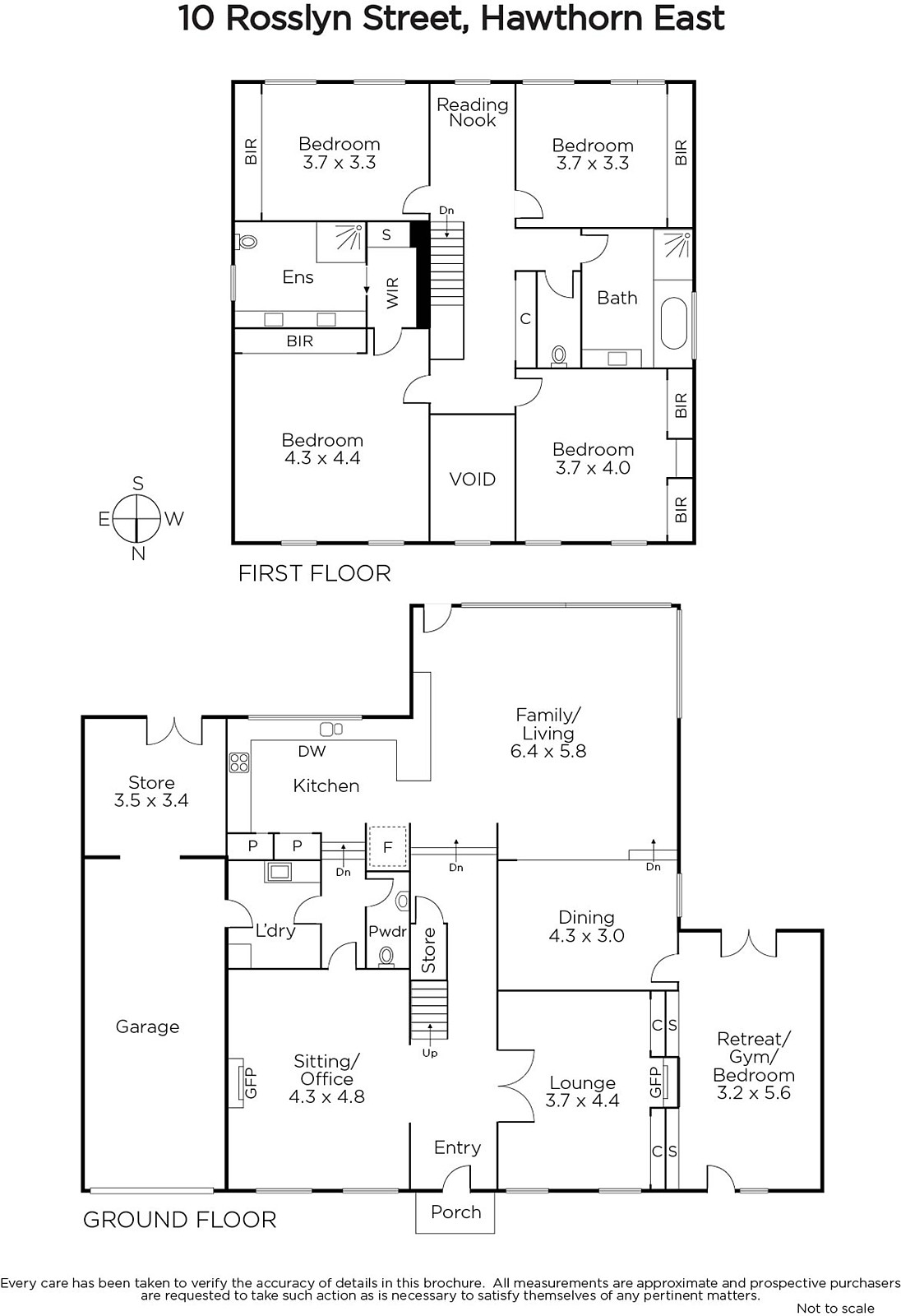
5
Bedroom
|
2
Bathroom
|
3
Parkings
|
611sqm
Land Area
|
|
| Floor Plan | Agent |
Private Sale |
Quote $2,750,000 - $3,025,000 |
South Facing |
Your enquiry has been successfully submitted.
You will be hearing from us soon!
Please ensure that you have entered your name, phone number, email address and selected at least one of our services!