
From our 2011 Rating "Cracking property to renovate, in a coveted Middle Park Street. Block width, rear car access and north-eastern rear aspect are the main plusses. Hard to go wrong with this one - rated as Land Only."
2025
Good bones, good blank canvas, straightforward options to be great with clear and smart thinking!
Are you buying this as a project? Then yes – this makes a lot of sense.
You’re getting solid land (361sqm), a classic Middle Park façade, and a rear that’s ripe for a meaningful yet manageable renovation. Whether you’re a value-seeker wanting to create your version of great or someone emotionally drawn to space, light, and location — this is a strong proposition.
This isn’t a "cheap buy," but it’s a humanly reasonable price given what Middle Park is and where it sits against other $4m+ options in Albert Park or Brighton. It’s a house with a great start, and the rest is yours to shape
Price
At this price level, you are not paying for someone else's expensive and possibly off-trend finishes. You're not over-capitalising from the start. That gives you room to spend smartly and tailor the renovation to your own needs — or what future buyers will value.
Would I be nervous about getting value back post-reno?
No, not if it’s done well. This area supports it. Just don’t overbuild or chase unicorn finishes. Focus on scale, light, practicality – focus on proportions.
Position
Let’s be straight — Hambleton isn't the absolute "ant's pants" of Middle Park streetwise. But it’s still top 5% in Melbourne, arguably Australia.
You are:
- Close to everything: Rail, MSAC, Albert Park Lake, Armstrong Street village, schools, and the beach.
- Tightly held: Limited turnover means low supply tension — that works in your favour long term.
- Quiet and residential with no real compromises.This is an area you live in for lifestyle and longevity. Few reasons to leave once you're in.
Property
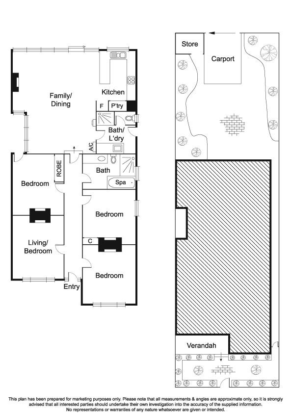
Front half? Lovely.
- It’s a block-fronted timber period home that has the presence and feel of stone.
- The street appeal is real, and those front rooms are substantial.
- There’s value in keeping their proportion and character — a sympathetic refresh is all that’s needed.
Back half? That’s where the work is.
- It’s a canvas.
- I’d suggest a meaningful double-box reno: upstairs and down. Make it bold in form and smart in layout.
- Don’t go overboard with luxury finishes — get the spaces right. That’s what delivers lifestyle and resale.
Orientation is a real plus here — there’s good sun from the north-ish aspect. Done well, that can turn the rear into something quite special.
What should you be thinking of if resale matters?
- Three-car garage off the lane with a studio above = high appeal.
- Make the mid-section strong in proportions, and the rear open and connected.
- Keep ceiling heights generous.
- Preserve and complement the front — that’s your emotional anchor.
The Real Question
Is this the home for you — for the next decade of your life?
If you want space, location, and something you can truly make your own — then yes, this makes a lot of sense.
If you're strategic about money and lifestyle — this also sits well.
Mal’s Take
I really like this home.
Not just for what it is now — but for what it can be with you in it.
If done right, this will be one of those projects that people look back on and say, “That was smart.”
Your enquiry has been successfully submitted.
You will be hearing from us soon!
Please ensure that you have entered your name, phone number, email address and selected at least one of our services!
|
4
Bedroom
|
2
Bathroom
|
2
Parkings
|
361sqm
Land Area
|
|
| Floor Plan | Agent |
Sold - 12:30 PM May 24 2025 |
Quote $3,700,000 - $3,900,000 |
North Facing |
Your enquiry has been successfully submitted.
You will be hearing from us soon!
Please ensure that you have entered your name, phone number, email address and selected at least one of our services!