

 
                                        
                                
                 
                
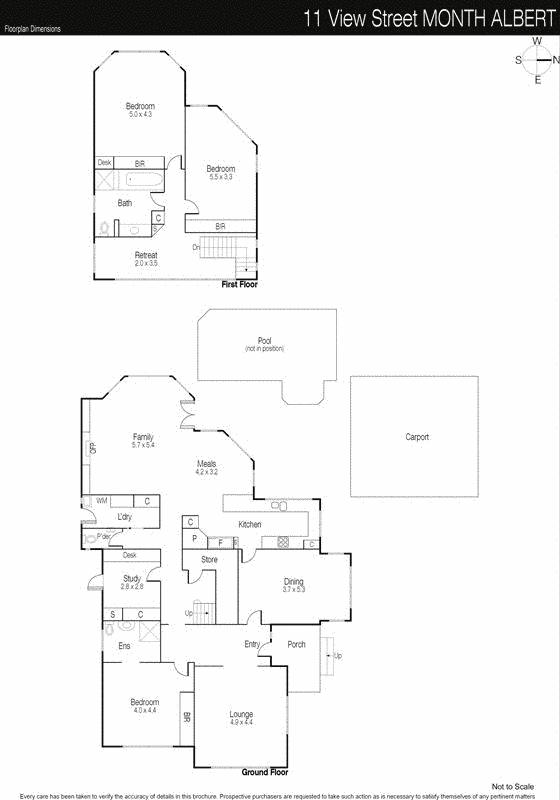
            A lot to like about the area, this street and the home at 11 View St. Good land size, good street presence and good feel inside. Plenty of space for children indoors and outdoors. Being picky it is one bedroom short upstairs (for some ) and rear living areas and study are no the biggest. However overall a very good home and is sure to attract a fair degree of interest from family home buyers.
Your enquiry has been successfully submitted.
You will be hearing from us soon!
Please ensure that you have entered your name, phone number, email address and selected at least one of our services!
| 4 Bedroom | 2 Bathroom | 3 Parkings | 
                                                                    995sqm
                                                             Land Area | |
| Floor Plan | Agent | Sold - 12.30pm Sep 12 2009 | Quote $1,400,000 | West Facing | 
 
         
        Your enquiry has been successfully submitted.
You will be hearing from us soon!
Please ensure that you have entered your name, phone number, email address and selected at least one of our services!