

 
                                        
                                
                 
                
            14 Glen Iris Road: A Rare Find
 
When someone says, "architectural integrity" or "building innovation," you usually brace yourself for something weird – a love-it-or-hate-it creation that divides opinions faster than a controversial Grand Final decision.
 
But here's the thing about 14 Glen Iris Road: it's got all that architectural flair and building excellence, yet it's wonderfully, refreshingly mainstream. Everyone gets it. Everyone likes it.
 
The Space Story
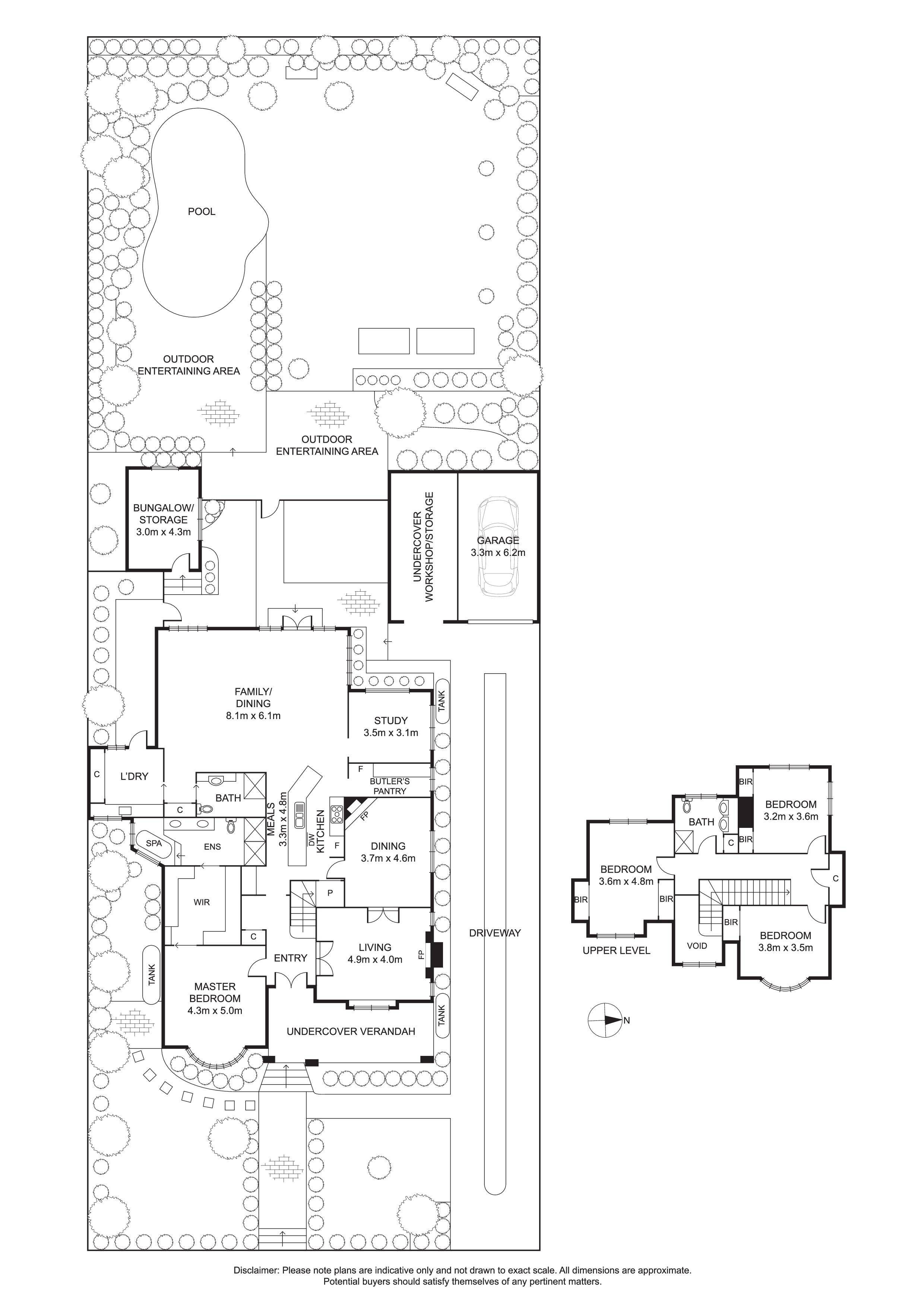
Let's talk about the master bedroom upstairs. It's huge. Like, possibly-bigger-than-my-whole-home huge. But here's the magic – it doesn't feel like a cold, empty museum. It's cozy despite its size. Homely but luxurious.
 
The whole upstairs layout is genius. There's this "corridor" between the master and other bedrooms, except it's not really a corridor. It's more like a journey in luxury – wide, bright, purposeful.
 
Ground Floor Magic
The front door sits slightly off-center – apparently for feng shui perfection (according to Tamsin). Skeptical? Wait until you stand in the living area and look back. That entrance hits different. It's powerful.
 
Speaking of perfection – while there's no downstairs master (yet), all the plumbing and services are ready in the southeast corner. Two rooms waiting for an easy conversion.
The flow from formal to informal spaces feels natural, leading to that show-stopping rear living zone. And that second kitchen? It's not playing around – we're talking restaurant-grade everything. Perfect for serious entertainers.
 
The Technical Stuff
This home is built like a premium car:
- Double glazing everywhere
- Security that feels like Fort Knox
- Climate control that would make NASA proud
- Plus about a dozen other features I could geek out about
 
Let’s Be Picky
Yes, it's on Glen Iris Road. Yes, that's busy. But step inside – that double glazing and solid construction means you'll hear more noise from your Netflix than the traffic outside.
 
Location? It's standard Camberwell pricing territory, but you're close to everything – schools, parks, shops. It just works.
Worried about the façade dating? Don't be. It's intentionally understated – a quick paint job and lighting update in a decade will keep it fresh.
 
Those few steps? Barely worth mentioning, especially when you see how the house sits proud. I can live with those steps into the garage and that rear access is a big plus.
 
The Verdict
I liked it on my first visit. Loved it on my second. That almost never happens. Both the Anglo Aussie and Asian Aussie market will like this.
 
This isn't just a house. This is a home that gets better the more you look at it. And in today's market, that is a lot rarer than you think.
Your enquiry has been successfully submitted.
You will be hearing from us soon!
Please ensure that you have entered your name, phone number, email address and selected at least one of our services!
| 5 Bedroom | 3 Bathroom | 3 Parkings | 
                                                                    1,088sqm
                                                             Land Area | |
| Floor Plan | Agent | Private Sale | Quote $5,800,000 - $6,400,000 | West Facing | 
 
         
        Your enquiry has been successfully submitted.
You will be hearing from us soon!
Please ensure that you have entered your name, phone number, email address and selected at least one of our services!