
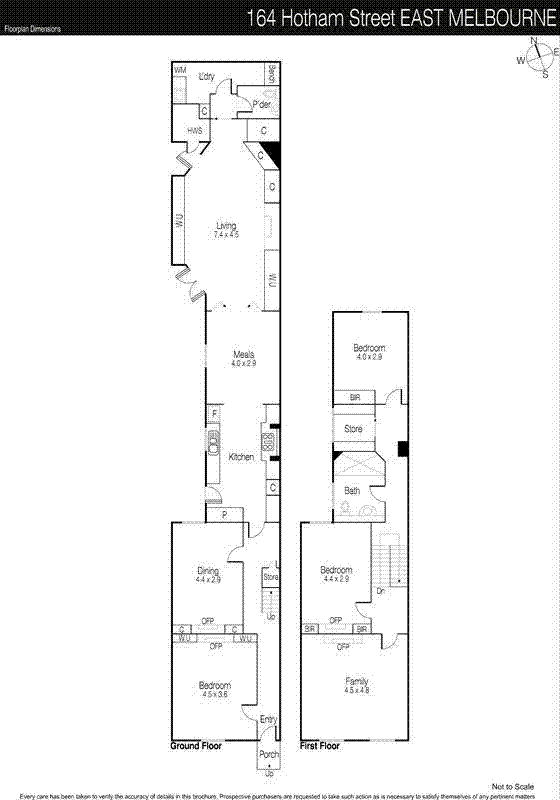
This classic terrace, with a wonderful facade, is near the Fitzroy Gardens and provides easy access to the CBD and major sporting events. As with all terraces of this vintage there is no opportunity to reshape the basic building blocks but the interior can be attacked with gusto and $$ to provide a classical town house. Natural light is adequate as the property sits on a corner but there is no parking. The interior has been updated but is ready for a further update. The conservatory at the rear of the house ( facing north) is a bit of a sun trap so a better balance of temperatures would be more attractive. If tradition was kept the downstairs could be converted to a more formal entertaining area.
Your enquiry has been successfully submitted.
You will be hearing from us soon!
Please ensure that you have entered your name, phone number, email address and selected at least one of our services!
|
3
Bedroom
|
1
Bathroom
|
0
Parkings
|
167sqm
Land Area
|
|
| Floor Plan | Agent |
Private Sale |
Quote $1,900,000+ |
North Facing |
Your enquiry has been successfully submitted.
You will be hearing from us soon!
Please ensure that you have entered your name, phone number, email address and selected at least one of our services!