

 
                                        
                                
                 
                
            18 Campbell appeals to a wide range of buyer groups
1. Local and Overseas buyers who want the position
2. Overseas buyers who will bulldoze (STCA) due to land size
3. Local buyers who want a period home
4. Local buyers who want a bigger single level home.
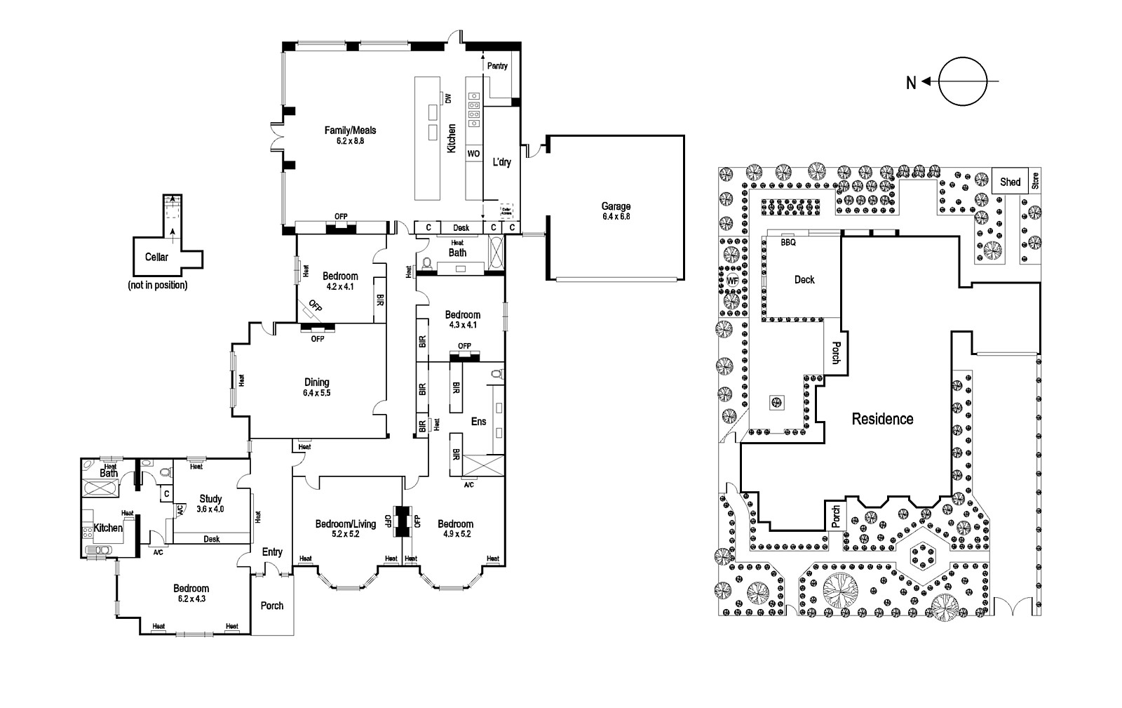
For me there's a lot to like about 18 Campbell - it is an unusually big and classy single level home with a separate bedroom wing making it suitable for multiple generations - a high quality rear living area that takes in everything the northern sun has to offer - good garaging and period façade - but if god forbid you wanted to knockdown - then you have a substantial relatively flat parcel of land with a home history of sitting forward on the block in a street that also has a good history - of increasingly bigger sales numbers.
Location says this will have strong Asian and local Asian competition due to Camberwell Grammar and other schools and also due to who has bought in the area over the last decade. However the local market is not as shy as it once was and will not be giving up on this home at auction - due to the size - period - flow combination that the floorplan offers.
This is a rare home
Quality period but can bulldoze
Big land but single level
Land value and not too much - despite a quality home on it
This should not sell for $4m and a trickle - it should sell for comfortably more than that.
Your enquiry has been successfully submitted.
You will be hearing from us soon!
Please ensure that you have entered your name, phone number, email address and selected at least one of our services!
| 5 Bedroom | 3 Bathroom | 2 Parkings | 
                                                                    1,300sqm
                                                             Land Area | |
| Floor Plan | Agent | Sold - 11:00 AM Aug 27 2016 | Quote $4,500,000 | East Facing | 
 
         
        Your enquiry has been successfully submitted.
You will be hearing from us soon!
Please ensure that you have entered your name, phone number, email address and selected at least one of our services!
Crowd Numbers: 120 people
Bidderman: 6 bidders