
This is one of those homes where on paper everything should be A; yet somehow the current owners have snatched defeat from the jaws of victory and the home is now a B.
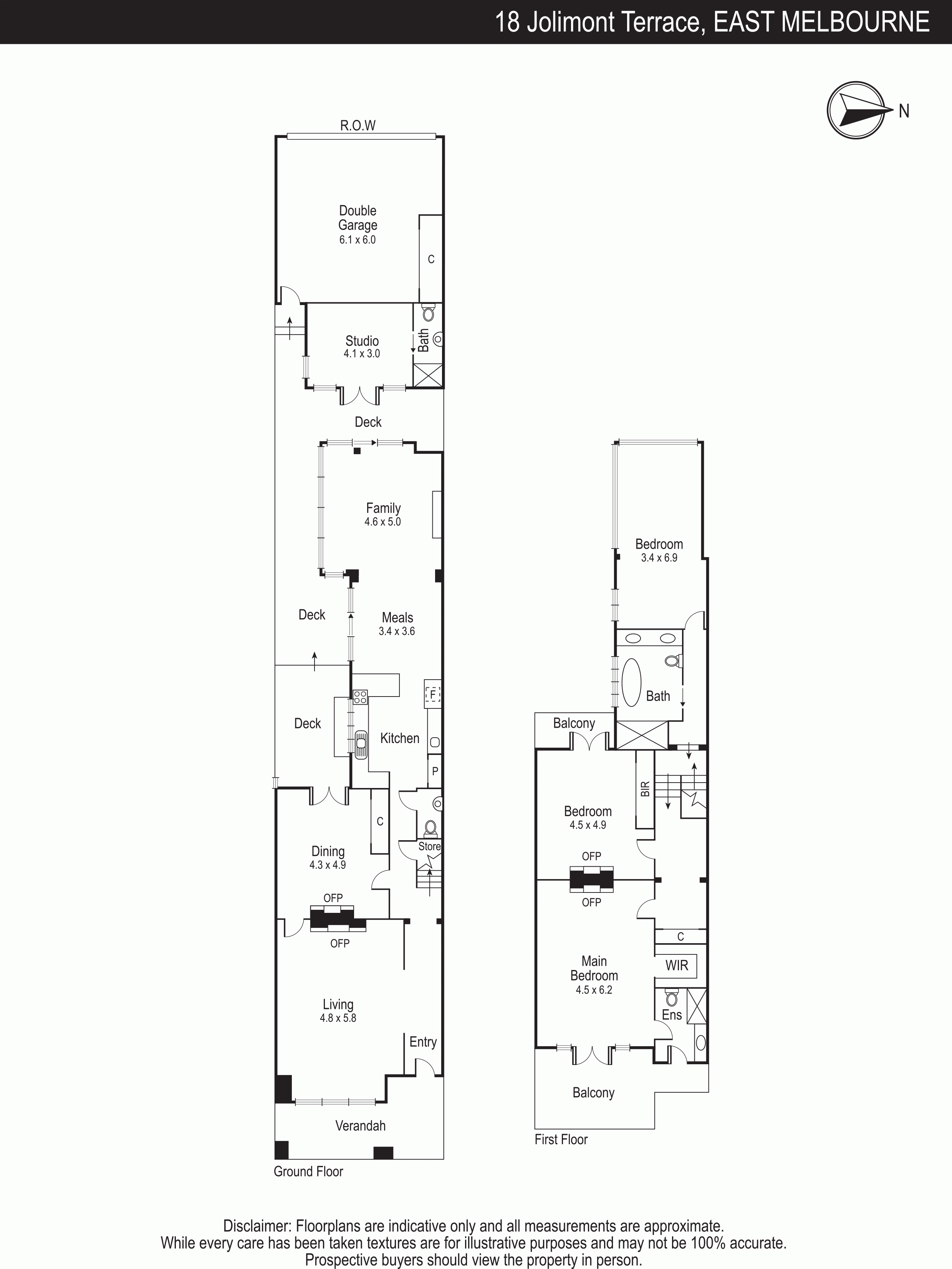
The location is sensational - except for match day if you don't like crowds - next to the MCG. The home has all the potential in the world and the floor plan is pretty much there. Brilliant car parking, bathrooms in the right place upstairs, big back yard and so on.
But internally the renovations raise questions around application or it skill? For example, the kitchen looks likes it’s been built by an apprentice and it really needs to be a little.
So pest and building inspections are a must. Having said all that if you are prepared to strip it back, meaning you have some building talent or are a builder AND this home goes for the right price then 18 Jolimont could be gem and I really meant that.
Our records show this home has been on the market multiple times in the last few years - selling a few years ago for circa $3m.
I may sound particular damning of what has been done and I am, but that doesn't alter the major bones of this property and its position - so if the price is right and you have the knowledge, then go for it.
Your enquiry has been successfully submitted.
You will be hearing from us soon!
Please ensure that you have entered your name, phone number, email address and selected at least one of our services!
|
4
Bedroom
|
2
Bathroom
|
2
Parkings
|
354sqm
Land Area
|
|
| Floor Plan | Agent |
Auction - 2:00 pm Oct 25 2014 |
Quote $2,850,000 |
West Facing |
Your enquiry has been successfully submitted.
You will be hearing from us soon!
Please ensure that you have entered your name, phone number, email address and selected at least one of our services!