

 
                                        
                                
                 
                
            Property:
This is a neat and good feeling home
Street presence will be attractive to most people due to the height and simplicity of the building and front garden
In this area, there are not so many options at this smaller land size and therefore price ie, this offers substantial accommodation on a smaller block
Nothing needs to be spent before moving in although kitchen bench heights are too high for most people
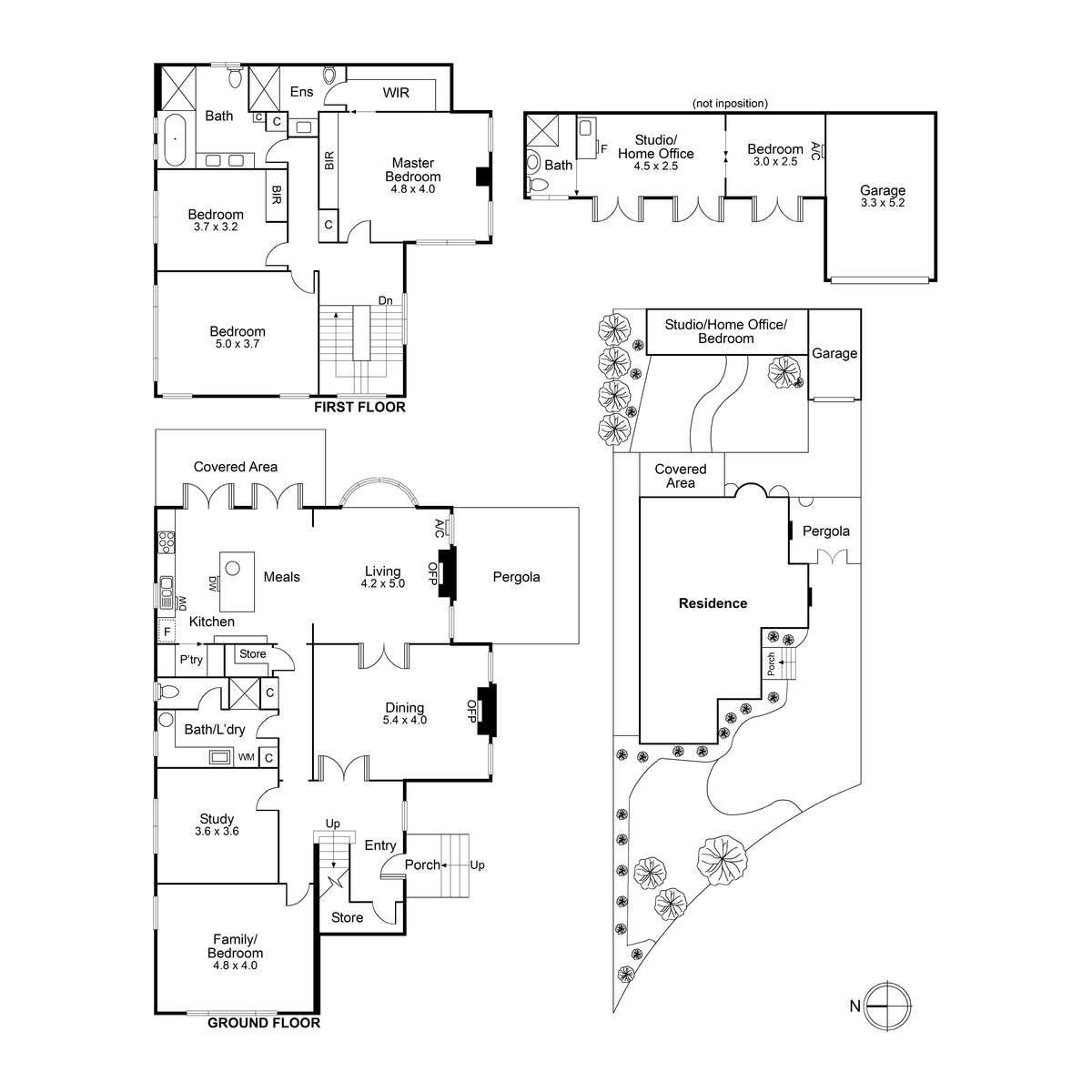
There’s flexibility in the floorplan for growing families, for example, create master bedroom suite downstairs, and importantly, these can be done within the existing footprint
Cosmetic changes could be made to suit the particulars of each family, such as improve the laundry/bathroom layout, improve the kitchen to enlarge the meals area
The bonus of the self contained bungalow could attract additional buyer profiles such as, families with an au pair, grandparents or boomerang adolescents kids living with them or indeed act as a home office or studio
There is some overlooking - although the windows from neighbours are small and this is not unusual in this precinct – buyers should make their own judgements on this
No garage from a practical point of view although there may be opportunity to construct a garage or carport connecting to the entrance of the home which is on the side (STCA)
Position:
Well-regarded position
Close enough to tram-lines and schools and therefore, it may attract buyers priced out of Stonnington
Price:
Agents are saying interest is in the high $1m’s.
We are saying if you like the feel and the position of this home, the price should fit the size of the offering. However, the amount of accommodation as well as the flexibility of this property’s accommodation could be the Wow that affects price.
Your enquiry has been successfully submitted.
You will be hearing from us soon!
Please ensure that you have entered your name, phone number, email address and selected at least one of our services!
| 5 Bedroom | 4 Bathroom | 2 Parkings | 
                                                                    551sqm
                                                             Land Area | |
| Floor Plan | Agent | Sold - 1:00 PM Jul 17 2016 | Agent Declined Quote | East Facing | 
 
         
        Your enquiry has been successfully submitted.
You will be hearing from us soon!
Please ensure that you have entered your name, phone number, email address and selected at least one of our services!
Crowd Numbers: 0 people
Bidderman: 5 bidders