

 
                                        
                                
                 
                
            I liked it a lot - it's an early to mid 700s rating an A-Grader
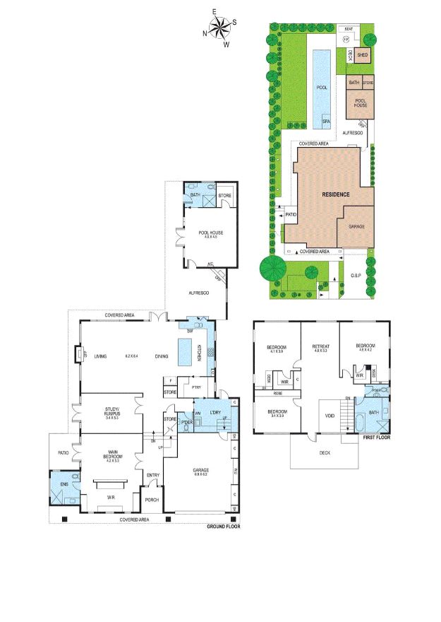
Floorplan and flow and proportions - Extra room at the back and landsize - all these things are really good.
Steps, pool and brick look not so great - I think anything involving brilliant cosmetics from plantings and internal finishes that highlight a cutting edge feeling that accentuates the lines of the home will value add
Good lines and great bones.
Price feels like $4m - land sales are mid 2ms but smaller blocks - I've only used samples on east of burke
Some more $ if competition
Less if we can do a quiet deal and the sellers are flexible.
Yes it's dated - but can you unlock the value?
Also be a little careful on overcapitalising as you can see $4m is a big number in this area but your land size is rare.
Some will buy because they perceive you don't need to do a reno and those who want to update, can update for not much because the floorplan really works as is. 
Your enquiry has been successfully submitted.
You will be hearing from us soon!
Please ensure that you have entered your name, phone number, email address and selected at least one of our services!
| 4 Bedroom | 3 Bathroom | 4 Parkings | 
                                                                    867sqm
                                                             Land Area | |
| Floor Plan | Agent | Sold - 6:00 PM Nov 29 2022 | Quote $3,700,000 - $3,950,000 | East Facing | 
 
         
        Your enquiry has been successfully submitted.
You will be hearing from us soon!
Please ensure that you have entered your name, phone number, email address and selected at least one of our services!