

 
                                        
                                
                 
                
            Text I sent to you straight after this visit
I do like it.  Obviously, next door build is a handicap, and the stairs are steep but it works for me on some levels (pun intended). The post covid work from home crew should lap this up, as should families with teenagers - even us oldies.
 
It should have sold. I think the other next door at $4.65m is also a handicap - price expectations. That was a strong price.  It does feel $4m would be challenging but not impossible - I am surprised no offers yet. It should have interest - it is good. 
Further thoughts - last 2 days
Asian buyers would struggle with the T intersection
This is a good home - it feels it’s a $4m - so anything less feels good
The building next door will be annoying but temporary and will affect some views but not all
The location is sensational; if you like the location feel
Rare offering
 
 
Wrote this when I went thru it in 2014
This is an amazing take on warehouse living and I couldn't get enough of it!
 
The rating doesn't do the property justice - yes it's small land, attached, and has commercial buildings to the north - and all of these reduce the rating, but when it comes to warehouse living - this is one of the best I have seen.
 
Ample car parking, home office (if desired), lift, great spaces, the abundance of storage and quality to match.
 
This property isn't about the home, it's about how you buy it.
 
Scarcity, particularly in Brighton, is the key here so how will you understand interest?  No doubt many will love it, but will they want to buy it?
 
Unless you don't mind what you pay, how will you work out values?  What makes sense and what doesn't?  How much 'emotion' is involved in this purchase?
 
And finally, if you do want to buy it, what is the best strategy?
 
If you are having difficulty answering any of these questions, let's start back at the top again - how are you going to buy it?
Your enquiry has been successfully submitted.
You will be hearing from us soon!
Please ensure that you have entered your name, phone number, email address and selected at least one of our services!
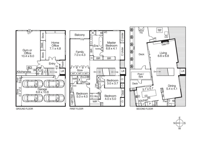
| 4 Bedroom | 4 Bathroom | 4 Parkings | 
                                                                    238sqm
                                                             Land Area | |
| Floor Plan | Agent | Sold - 10:30 AM Nov 26 2022 | Quote $3,500,000 - $3,850,000 | North Facing | 
 
         
        Your enquiry has been successfully submitted.
You will be hearing from us soon!
Please ensure that you have entered your name, phone number, email address and selected at least one of our services!