

 
                                        
                                
                 
                
            A secluded and exclusive spot in Bayside, this property will attract and hold emotions especially from locals.
Once on the track part of Coral Ave, the feel is one of privacy and isolation; of being on holiday rather than in the city. The glimpses of the water from the track out the front of this property and the dirt road directly to Beach Road and Ricketts Point create a feeling and a location people aspire to attain.
But what is the property itself?
It could be land or it could be a family home.
As land, buyers can build 2 homes or one larger family home (STCA) and it could make financial sense if they get the design right.
As a family home, there is strong demand for mid-century homes and currently there’s local community support to restore and retain the homes rather than build new.
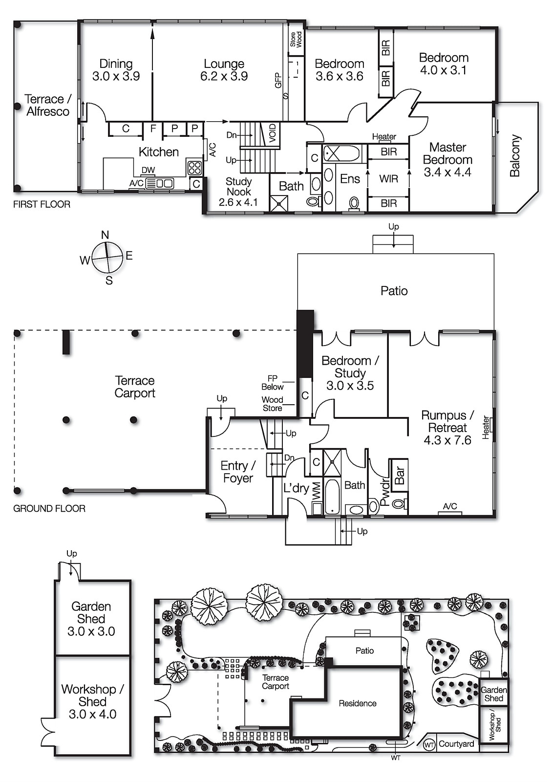
But this c1956 home does not have proportions or flow that will suit many modern families. None of the rooms are big and the hallway and multiple steps and stairs feel a bit cramped and awkward. If you have only 2 children the limited space in the thoroughfares could be acceptable. The upside down floorplan will not appeal to everyone but it will hold strong to appeal to those that love the elevation and feeling part of nature. The downstairs affords this home some flexibility and lends itself to becoming separate accommodation for adolescent children/grandparents or guests.
The block is the highlight – it feels big and wide and flat and private and quiet. The house is situated well by being on the south boundary thereby allowing good access for all day light and better indoor-outdoor connection to the yard which wraps around the home.
This solid home could be updated and improved to provide a tranquil haven for kids to play outside and parents to potter or entertain. However, those wanting this old fashioned family lifestyle will need to compete with those wanting a large contemporary home; a life of a different luxury.
Your enquiry has been successfully submitted.
You will be hearing from us soon!
Please ensure that you have entered your name, phone number, email address and selected at least one of our services!
| 4 Bedroom | 3 Bathroom | 3 Parkings | 
                                                                    786sqm
                                                             Land Area | |
| Floor Plan | Agent | Sold - 3:30 PM Mar 25 2017 | Quote $1,800,000 - $2,000,000 | East Facing | 
 
         
        Your enquiry has been successfully submitted.
You will be hearing from us soon!
Please ensure that you have entered your name, phone number, email address and selected at least one of our services!
Crowd Numbers: 100 people
Bidderman: 3 bidders