

 
                                        
                                
                 
                
            I have rated this as a serious reno and if it was not staring up at the Cabrini juggernaut, then this would be an easy decision to make up to price point, well above the current quote.
Meaning it's a "good bones" house if you want a major reno. It's livable or rentable while you get your plans done - which would be to keep the front - good sized rooms and lovely feel and façade - demolish and rebuild the ugly box that has been tacked on at some stage in the past out the back - meaning kitchen and living.
You have north light from the rear and brilliant parking for the area, via the side and well as a generous garden size.
So it's the Big Boy in your face versus great bones to build a sanctuary in an otherwise excellent location.
JAMES AUCTION REPORT 12.8.17
Agent Quote: $3,300,000 - $3,600,000
On Market: $3,650,000
Result: $4,050,000 Bought, under the hammer
Crowd: 70
Bidders: 2
What Happened: Auctioneer Andrew Boyce opened with Vendor Bid of $3,300,000. Two bidders continued the bids at a steady pace, when Mr Boyce could finally take a breath the home was announced On the Market. Bidder 1 held strong and the home was sold for $4,050,000.
James Value Analysis: This was a strong result on a home opposite the hospital with a very poor reno. Above expectations. Quoting was ethical and professional.
Your enquiry has been successfully submitted.
You will be hearing from us soon!
Please ensure that you have entered your name, phone number, email address and selected at least one of our services!
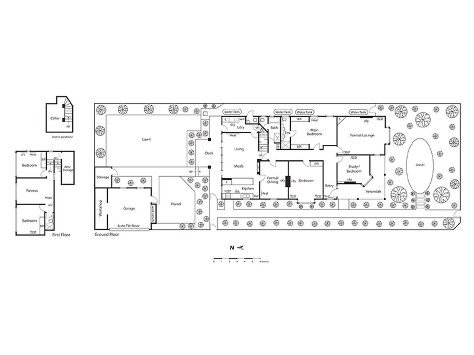
| 4 Bedroom | 3 Bathroom | 2 Parkings | 
                                                                    787sqm
                                                             Land Area | |
| Floor Plan | Agent | Sold - 12:00 PM Aug 12 2017 | Quote $3,300,000 - $3,600,000 | North Facing | 
 
         
        Your enquiry has been successfully submitted.
You will be hearing from us soon!
Please ensure that you have entered your name, phone number, email address and selected at least one of our services!