

 
                                        
                                
                 
                
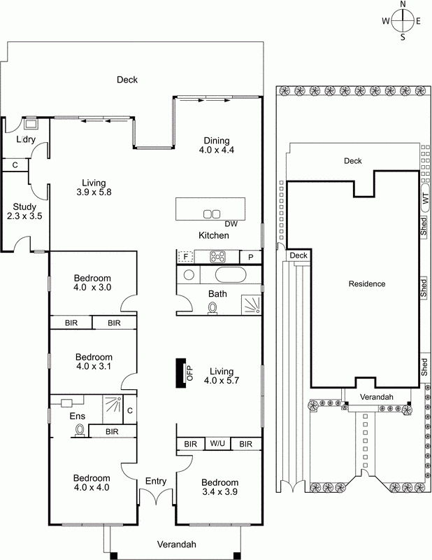
            This is a good family home - two well separated living areas and enough bedrooms for a larger family. On the north side of the street, the informal living areas (including kitchen) get great access to natural light and the yard can be viewed easily - ideal for keeping an eye on young ones playing.
Single storey provides easy living and may also suit downsizers, however, it does take up a little more room on the block, compromising the size of the back yard. Some buyers may want bigger, although there is still enough room for a swing set, tramp or small pool if desired. The front yard is a good size which may provide some compensation, if buyers don't mind children playing out the front.
The kitchen is well positioned and set out, however, for some budding chefs, the addition of a walk in pantry, would have provided additional value and extra storage space.
With all the bedrooms together, buyers may find they want more separation as small children become teenagers. Buyers may then consider a move to a larger home, or alternatively, an extension up (stca) to create the additional space and separation.
The street is tree-lined and very attractive, however, it is an arterial for locals and carries some traffic, particularly at peak periods such as school times. There is also a bus stop out the front, so buyers may wish to review the route and its frequency.
For those requiring frequent use of public transport, the station (courtesy of google maps) is less than a kilometre away by foot.
The home has no garage, but offers plenty of room (tandem) for off street parking. A couple of small sheds are down the east side, however, some buyers may consider the study a good alternative if requiring additional storage.
With many positives, this home is likely to appeal to a variety of buyers and have good competition on auction day.
Your enquiry has been successfully submitted.
You will be hearing from us soon!
Please ensure that you have entered your name, phone number, email address and selected at least one of our services!
| 4 Bedroom | 2 Bathroom | 2 Parkings | 
                                                                    557sqm
                                                             Land Area | |
| Floor Plan | Agent | Sold - 2:30 pm Nov 29 2014 | Quote $1,050,000 - $1,150,000 | North Facing | 
 
         
        Your enquiry has been successfully submitted.
You will be hearing from us soon!
Please ensure that you have entered your name, phone number, email address and selected at least one of our services!