
First impressions of 24 Nicol are curiosity and surprise - a modern take on the older style period weatherboards. This contemporary treatment may divide buyers as some may see it as modern and cutting edge and others may see it as less appealing. Those that like it will love it, but others may still prefer the more traditional facades seen in the street.
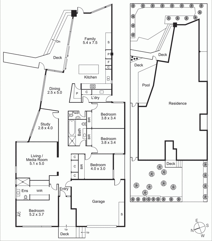
Beyond the façade is a clever and surprisingly large and flexible floor plan - I can see a family living here from the time they are starting out as a couple, through children (both younger and older) until ready to leave home. A central hallway forms a curved spine, with well separated bedrooms at the front and an informal living areas and entertainer's kitchen at the rear wrapping around the black-tiled plunge pool, deck and lawn area.
The main bedroom is close enough to the other bedrooms when children are young, but has enough separation that once babies are teenagers, they're not too close. The main bathroom is centrally located, however, in the middle of the house, it lacks external ventilation.
Although much of Highett is still sub $1million, the area is becoming increasingly popular with younger families who appreciate the convenience of the position to both local amenities (walk to shops, parks and station) and the greater Bayside area (schools, sporting precincts, beach etc). Buyers may see this as a great opportunity to buy with the work already done, taking advantage of the savings in time, stress and uncertainty around additional costs that come with buying one of the older homes that still needs replacing or renovating.
With buyers making a clear decision to move their focus from other areas to 24 Nicol Street, this property has the ingredients for strong competition on Saturday. A carefully executed and considered plan will be required to be the buyer, unless price is not the primary focus.
Your enquiry has been successfully submitted.
You will be hearing from us soon!
Please ensure that you have entered your name, phone number, email address and selected at least one of our services!
|
4
Bedroom
|
2
Bathroom
|
2
Parkings
|
595sqm
Land Area
|
|
| Floor Plan | Agent |
Sold - 1:30 pm Mar 1 2014 |
Quote $1,050,000 - $1,150,000 |
East Facing |
Your enquiry has been successfully submitted.
You will be hearing from us soon!
Please ensure that you have entered your name, phone number, email address and selected at least one of our services!
Crowd Numbers: 150 people
Bidderman: 4 bidders