

 
                                        
                                
                 
                
            Position
Beaconsfield Parade is the signature street in Port Phillip and one of the main drawcards to the area. Buyers and developers alike are drawn by the water views and proximity to cafes, shops and the CBD. Cornering McGregor Street, which also boats some of the premier properties in the precinct, finds itself in a much quieter pocket of the parade as it sits central to Port Melbourne and St Kilda's vibrant social scene.
Property
We have rated this property as significant renovation.
Attributes
Areas to address with renovation
Thoughts from our Architect
Price
Agent Quote $4-4.5m and suggesting interest levels are around $5m.
The planning department at Port Phillip City Council has confirmed the heritage overlay is for the exterior only, though a design and development overlay is in place. Which means (STCA) fully gutting or bulldozing part and starting again could see a contemporary state of the art bespoke home be obtained potentially without overcapitalising.
Your enquiry has been successfully submitted.
You will be hearing from us soon!
Please ensure that you have entered your name, phone number, email address and selected at least one of our services!
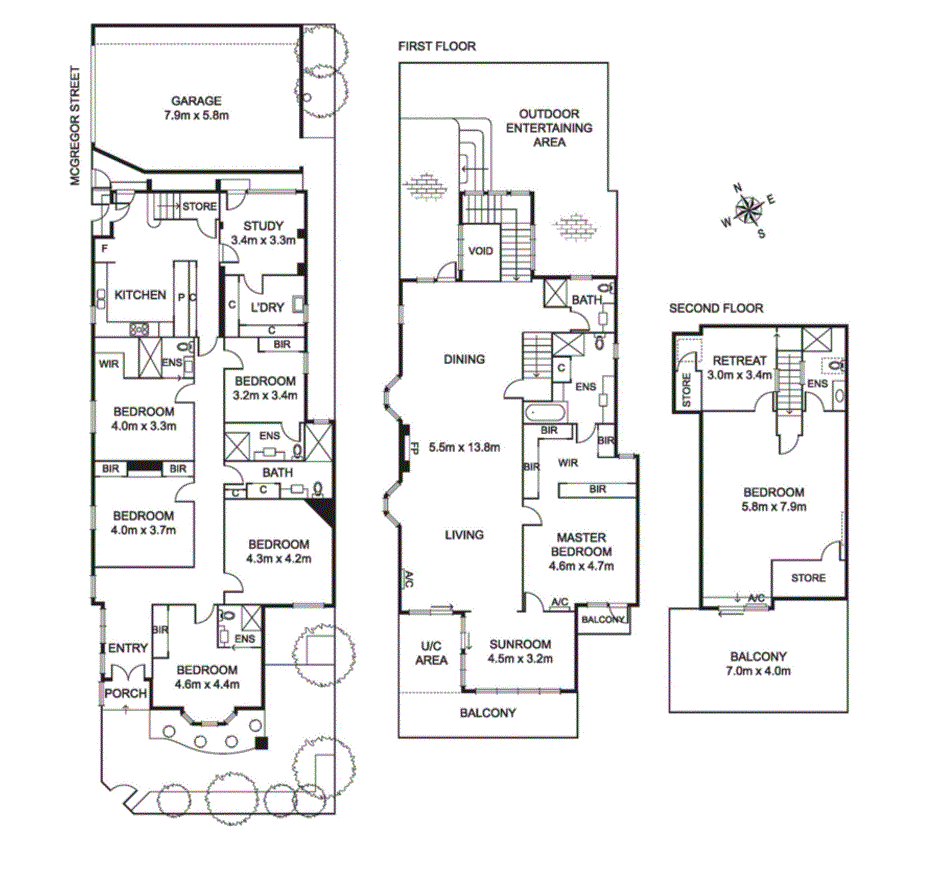
| 7 Bedroom | 7 Bathroom | 2 Parkings | 
                                                                    325sqm
                                                             Land Area | |
| Floor Plan | Agent | Sold - 1:30 PM Oct 22 2016 | Quote $4,000,000 - $4,500,000 | East Facing | 
 
         
        Your enquiry has been successfully submitted.
You will be hearing from us soon!
Please ensure that you have entered your name, phone number, email address and selected at least one of our services!