

 
                                        
                                
                 
                
            It's a single fronter that has been renovated to a good, without being WOW standard with excellent rear access parking in a nice part of the world - Albert Park.
Close to trains, shops, beach, CBD, swim centre and more - all with the block having a northerly aspect for light and winter warmth.
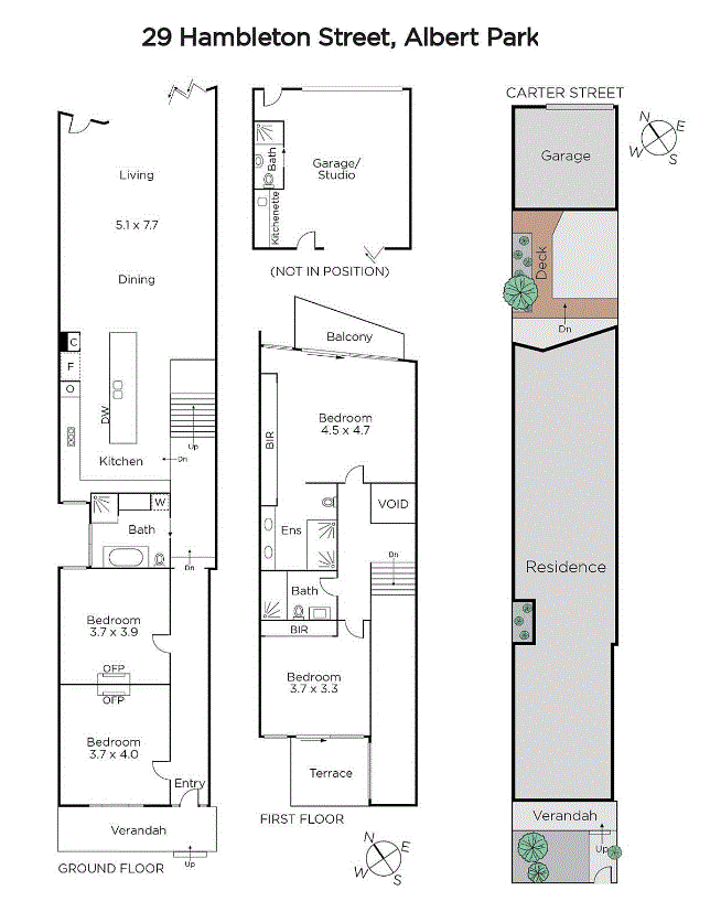
Room sizes are typical for the standard 5m width that is this single fronter, bathrooms located in the right spots as are the bedrooms - two up and two down. The garage doubles as a play area, studio or possible extra bedroom - not sure where the laundry is though - missed that.
Anyway it's a Albert Park bellwether - is single fronted, double storey on good land with good, but not great finishes (at this price level).
And what do these bellwethers currently go for? $3m give or take - wow hey! In Brighton that's a basic home on double or even triple the land - such is the demand In Albert Park now for families, couple, downsizers - even investors for these types of homes.
Some thoughts on other properties
231 Bridport Street - sold for over $3m - no carpaking - but wider offering and better finishes? And that makes a difference.
287 Richardson Street - also over $3,000,000 - better finishes, parking mmmm?
342 Montague and 97 Page - both over $3m - even though single fronters, different offerings
Then the unrenovated - 198 Page and 374 Montague - below $2.5m
The WOW factor of complete and lack of stock says $3m ish
Your enquiry has been successfully submitted.
You will be hearing from us soon!
Please ensure that you have entered your name, phone number, email address and selected at least one of our services!
| 4 Bedroom | 4 Bathroom | 1 Parkings | 
                                                                    207sqm
                                                             Land Area | |
| Floor Plan | Agent | Sold - 12:30 PM Jun 24 2017 | Quote $2,800,000 - $3,050,000 | North Facing | 
 
         
        Your enquiry has been successfully submitted.
You will be hearing from us soon!
Please ensure that you have entered your name, phone number, email address and selected at least one of our services!
Crowd Numbers: 100 people
Bidderman: 3 bidders