

 
                                        
                                
                 
                
            This is an A grade street in an inner city precinct with a home perfect for singles or couples who want their own sanctuary when returning from the excitement of neighbouring shopping and entertainment hubs.
This home is for those who like to entertain and who like their privacy. And the study opening onto the deck provides a great place for those who work from home.
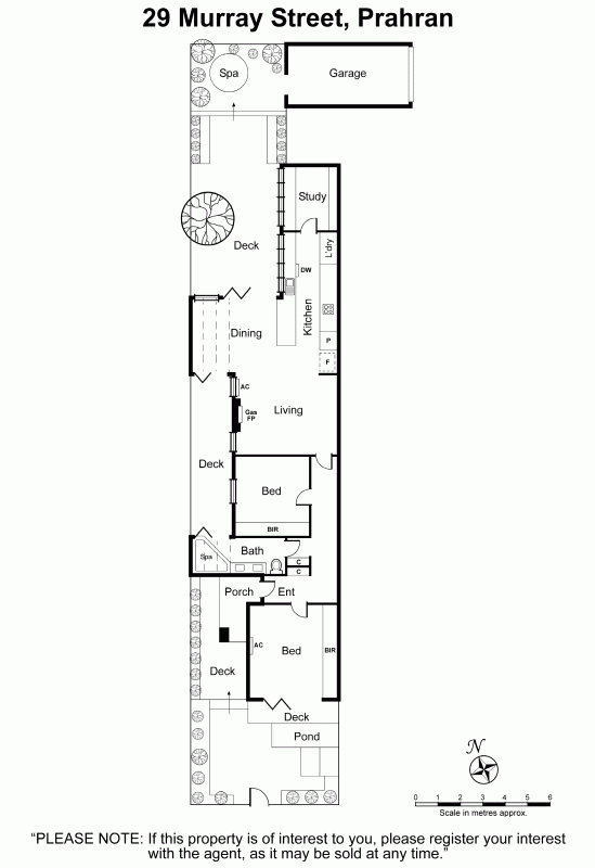
This 2 bedroom plus study home was transformed by its owner to bring the outside in from every room and aspect of the home. It would’ve felt as if we were on holiday had it not been for the grey and wet day but the fireplace and the northern windows added a warmth to the cosy and central heart of the home.
Many buyers would prefer a master bedroom suite with WIR and ensuite and this may deter downsizers in particular but this single fronter does have a garage from a side access point which most buyers will understand is a big bonus. This makes it easy to utilise but it lacks width for larger cars so may be used for storage instead – luckily this street has ample car parking.
As this property has been designed with a particular style it may not appeal to the wider market but it is easy to see how to cosmetically update the colours and finishes as well as some of the landscaping.
Overall this home would suit most buyers for the short to medium term or investors for the long term
Your enquiry has been successfully submitted.
You will be hearing from us soon!
Please ensure that you have entered your name, phone number, email address and selected at least one of our services!
| 2 Bedroom | 1 Bathroom | 2 Parkings | 
                                                                    222sqm
                                                             Land Area | |
| Floor Plan | Agent | Sold - 2:00 PM Sep 17 2016 | Agent Declined Quote | North Facing | 
 
         
        Your enquiry has been successfully submitted.
You will be hearing from us soon!
Please ensure that you have entered your name, phone number, email address and selected at least one of our services!
Crowd Numbers: 70 people
Bidderman: 0 bidders