
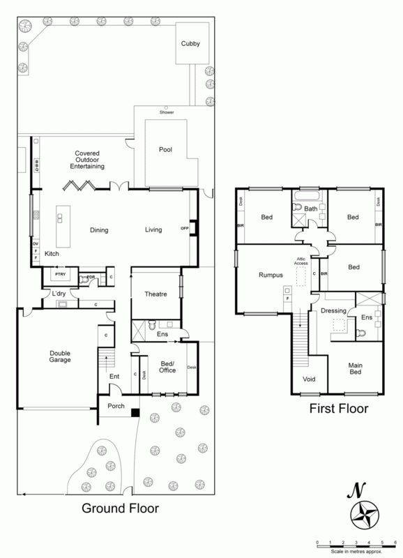
This home has WOW and for families (both with younger or older children) there is really nothing in the floorplan that doesn't work. The area is slowly regenerating as older homes are replaced with new homes. The house is situated opposite Velra Avenue and oncoming traffic may concern some. The home has a distinct "Queensland" feel with the north-facing alfresco are and pool. A very clever pool fence adds some character to an otherwise simple rear garden and, whilst the pool is small, it is proportionate to yard. I was expecting a 'grander' main bedroom, given the size of the home and the other bedrooms and was a little disappointed - it is small. The walk-in-robe is spacious, though it felt a little unusual to be walking through the robes to access the bedroom. The property is an easy walk to Hughesdale Primary, local shops including Oasis Bakery (one of my favourites), and the trainline, making it a family-friendly location. Secondary schools may become a question as the children get older. How much do you pay for the house now and how much will the house be worth in 5-10 years? That depends on what it means to you and what your long term plans are.
Your enquiry has been successfully submitted.
You will be hearing from us soon!
Please ensure that you have entered your name, phone number, email address and selected at least one of our services!
|
5
Bedroom
|
3
Bathroom
|
2
Parkings
|
558sqm
Land Area
|
|
| Floor Plan | Agent |
Sold - 1:30pm Feb 16 2013 |
Quote $1,175,000 - $1,250,000 |
North Facing |
Your enquiry has been successfully submitted.
You will be hearing from us soon!
Please ensure that you have entered your name, phone number, email address and selected at least one of our services!
Crowd Numbers: 150 people
Bidderman: 5 bidders