

 
                                        
                                
                 
                
            3 Knight Street Elwood is one of the most perfect post Covid family homes I have seen in 2022.
 
And maybe it’s under $4million.
 
Position
Overall B grade Elwood – but B-grade with a bullet (street is ok – and it’s a cul de sac)
But with some A-Grade positional features around it – canal / walking track and backs onto – literally – a park – free gigantic back yard.
 
If you like Elwood, want some land and have a budget that is not unlimited – tick tick tick
 
Property
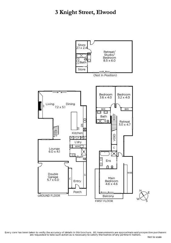
This is before we get to the home – it’s a brilliant layout – takes in the sun – flows brilliantly – good sizes – good proportions – good everything – from entrance to living spaces to main to additional bedrooms.
 
And on top of that, a rear room allowing separation for kids parties, grandma, nanny, teenagers – older families coming home – even a place for you as you age – brilliant.
 
And I feel great inside and outside and even in the free park out the back.
 
Price 
When you get quirky and good in an area that is wealthy and eclectic you get an unknown result because the bidding becomes volcanic – that is what may well happen here, even in this market.
 
The quote is non-sensical. How can it be low $3ms – it can’t be.
 
How can it be over $4m – through its class. High $3m’s is the only other likely alternative – it’s that good.
 
Is it worth it? Absolutely – this is the most emotional I have felt this year on a home at this price level – its exceptional. 
Your enquiry has been successfully submitted.
You will be hearing from us soon!
Please ensure that you have entered your name, phone number, email address and selected at least one of our services!
| 4 Bedroom | 4 Bathroom | 3 Parkings | 
                                                                    445sqm
                                                             Land Area | |
| Floor Plan | Agent | Sold - 10:30 AM Oct 22 2022 | Quote $3,000,000 - $3,300,000 | North Facing | 
 
         
        Your enquiry has been successfully submitted.
You will be hearing from us soon!
Please ensure that you have entered your name, phone number, email address and selected at least one of our services!