

 
                                        
                                
                 
                
            This attached single fronter is on the better side of a pair (for north light) in a tree-lined street walking distance to trams, trains, shops and park.
The block width, the car parking off the front, the entry & hall, the proportions of the original rooms and the façade are not often found in this type of home and this one is in a street comprising mainly of family homes.
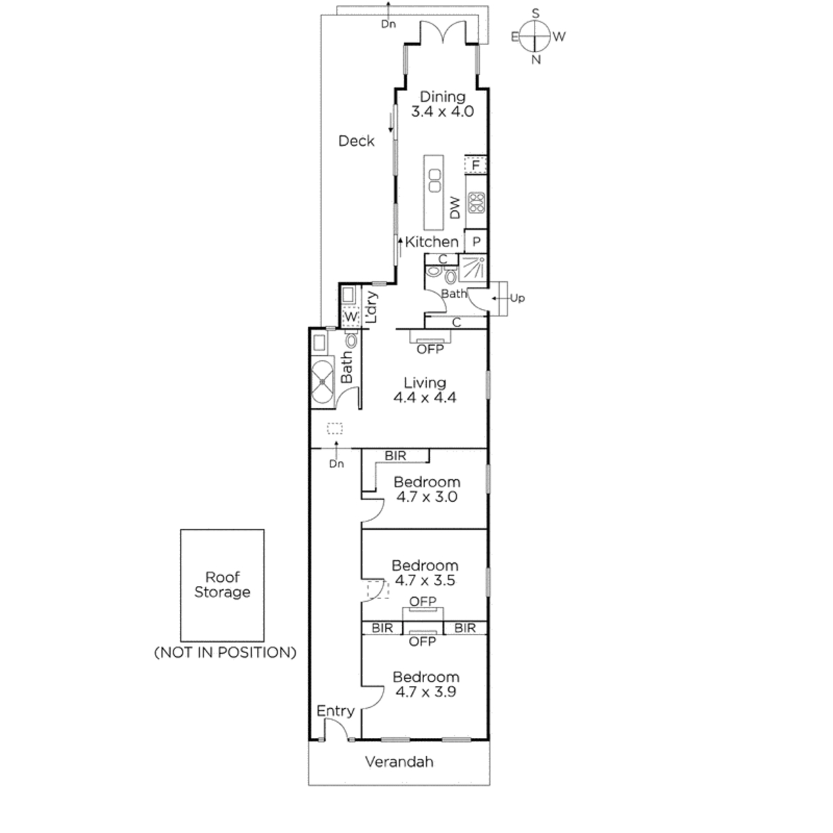
On the flip side is the south facing rear with the extension facing east - those who don’t like the hotter afternoon sun will like this but for me, it did feel a bit backwards. I tried to enjoy the tranquility of the deck and green yard but habits die hard and it felt slightly awkward – of course with time feelings can change.
The floorplan isn’t perfect (as expected) but if you are a couple who like to entertain or relax outside and need an office or second sitting room, this home works very well. It does have small blocks of flats to the rear, but the line of trees at the rear fence has almost entirely blocked the view.
So far so good except for the main bedroom ensuite - it doesn’t have one and the bathrooms are not in the best positions, It is this that I count as a concern for those who are used to having a WIR and ensuite (such as many downsizers) - but for those who do not need it, enjoy the price because of it.
The position and property package here should see demand for it as a rental with highway access to the city for work and trams to private schools and good shopping and cafes in Malvern and Armadale.
This is a lovely feeling home with the 5-7 year flexibility to value add with a renovation if you prefer at a later stage. After passing in on a VB of $1.2m late last year, it will be interesting to see if there's any movement in this new market with a new agent (quoting $1.2 - $1.3m) and another auction.
Your enquiry has been successfully submitted.
You will be hearing from us soon!
Please ensure that you have entered your name, phone number, email address and selected at least one of our services!
| 3 Bedroom | 2 Bathroom | 1 Parkings | 
                                                                    363sqm
                                                             Land Area | |
| Floor Plan | Agent | Auction - 1:00 PM Feb 21 2016 | Agent Declined Quote | South Facing | 
 
         
        Your enquiry has been successfully submitted.
You will be hearing from us soon!
Please ensure that you have entered your name, phone number, email address and selected at least one of our services!