

 
                                        
                                
                 
                
            I have been involved in 22 Powlett St before and this is a class medium sized apartment.
In a suburb of many apartments why is this a classy one?
Position to everything at a sub $2m price point.
Capital growth over a longer period of time – this is one of the few blocks that has performed well and Saturdays results will again only reinforce what interest this understated art deco block has.
This apartment itself is on the northerly side, easily the best for warmth and light, and is a simple blank canvas waiting for you to make your own – plus it has a car space.
Apartment blocks are like their own individual precincts and this block has always had an excellent reputation and I can see no reason why that will not continue.
The auction will be strong and will set a new standard – but the new standard will quickly become the old on the next sale – this is a great location – this is a great block – this is a great apartment.
Your enquiry has been successfully submitted.
You will be hearing from us soon!
Please ensure that you have entered your name, phone number, email address and selected at least one of our services!
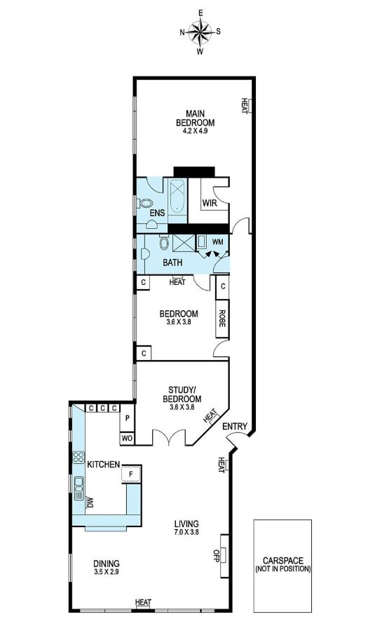
| 3 Bedroom | 2 Bathroom | 1 Parkings | 
                                                                    135sqm
                                                             Land Area | |
| Floor Plan | Agent | Sold - 2:00 PM Oct 12 2019 | Quote $1,400,000 - $1,500,000 | East Facing | 
 
         
        Your enquiry has been successfully submitted.
You will be hearing from us soon!
Please ensure that you have entered your name, phone number, email address and selected at least one of our services!
Crowd Numbers: 0 people
Bidderman: 4 bidders