
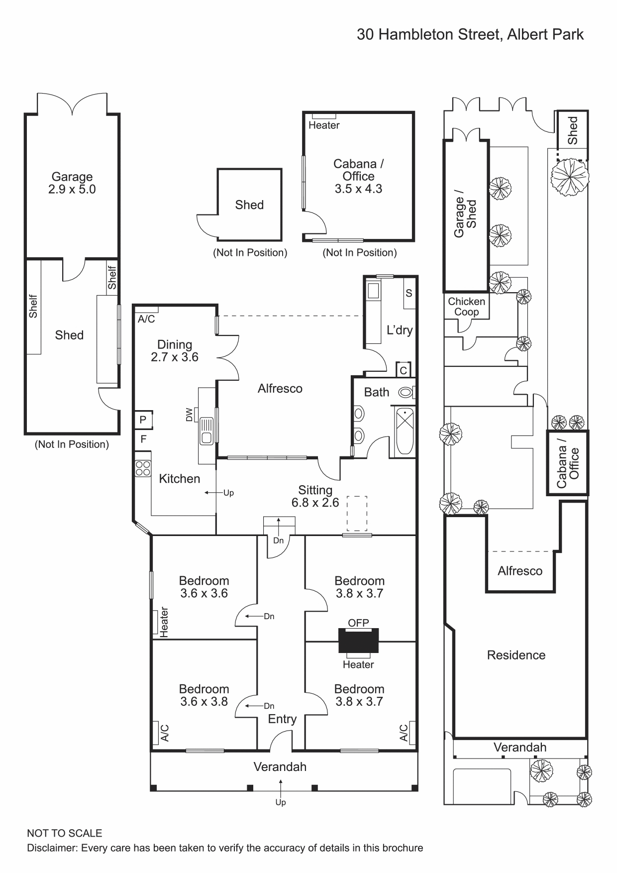
This free-standing double fronted Victorian timber cottage on 505 sqm of land is very rare in this part of the world. The house has been superficially upgraded since it was last on the market in December last year, and you could now live in the property or rent it out. Having paid just over $2m, most will still see this as land value only, as the property is a shell just waiting to have the big bucks spent. For the purpose of the rating I have rated it again as a serious renovation, despite the recent work. With its large land content and two street frontages the property could be subdivided or renovated to create a substantial family home (STCA). The position is very good, with good access to Albert Park Lake, Victoria Avenue, Armstrong Street, the beach and the light rail in Canterbury Road. The forthcoming auction of 17 Hambleton Street on the 11th of August – a vacant block of land of just under 400 sqm - may give some guide as to what the market thinks about big projects like this on larger parcels of land.
Your enquiry has been successfully submitted.
You will be hearing from us soon!
Please ensure that you have entered your name, phone number, email address and selected at least one of our services!
|
3
Bedroom
|
1
Bathroom
|
2
Parkings
|
502sqm
Land Area
|
|
| Floor Plan | Agent |
Private Sale |
Quote $2,100,000+ |
West Facing |
Your enquiry has been successfully submitted.
You will be hearing from us soon!
Please ensure that you have entered your name, phone number, email address and selected at least one of our services!
Crowd Numbers: 50 people
Bidderman: 2 bidders