
Our rating from 2011:
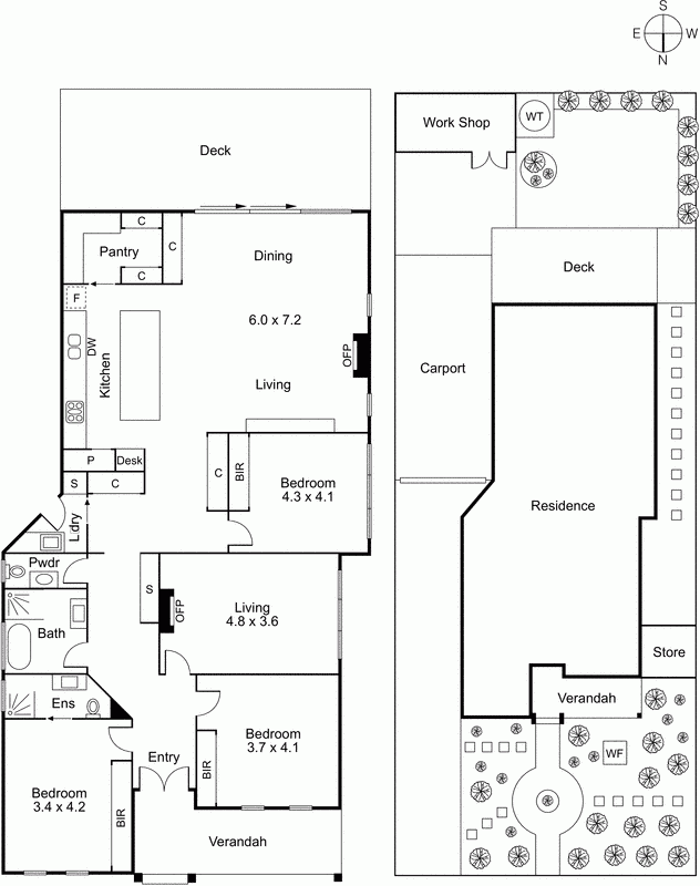
This home is a ready to move into home in 'the zone'. Would suit younger/smaller families, but may become too small as children reach the teenage years at which an extension may be required (stca). Given the southern rear, an extension upward would impact on natural light into the back yard. The kitchen/living room was surprisingly light, the addition of a skylight in the kitchen really helping this. Some may find floor plan flow is a little awkward and laundry is small. Position of block, looking straight down Malcolm Street, may not be for everyone. The property is really about location given it's proximity to McKinnon High, as well as walking distance to both McKinnon and Centre Road shops and stations.
Your enquiry has been successfully submitted.
You will be hearing from us soon!
Please ensure that you have entered your name, phone number, email address and selected at least one of our services!
|
3
Bedroom
|
2
Bathroom
|
4
Parkings
|
664sqm
Land Area
|
|
| Floor Plan | Agent |
Sold - 3:30 pm Feb 21 2015 |
Agent Declined Quote |
South Facing |
Your enquiry has been successfully submitted.
You will be hearing from us soon!
Please ensure that you have entered your name, phone number, email address and selected at least one of our services!