
30 York Street Hawthorn has what many buyers (downsizers, new homebuyers, couples, smaller families needing schools nearby, low maintenance lookers) are looking for; 3-4 bedrooms, good proportions, ready to move in, off-street car parking and walking distance to all amenities.
The drawback for some buyer will be the land size and then in turn the rear outdoor size and possibly the room sizes (they are fine, but not built for a big teenager family types). However, for most there are no concerns as it keeps the block lower maintenance, and the Hull Street playground is approx. 100m away.
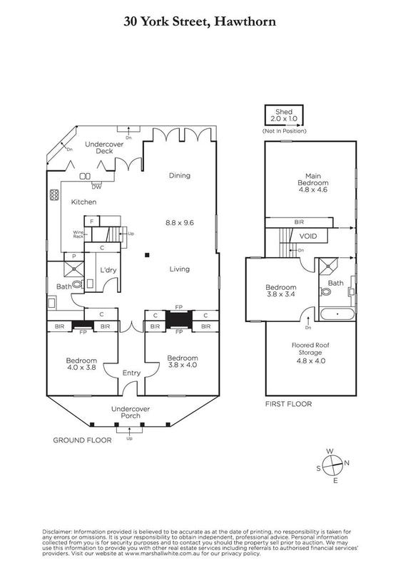
The home is ready to move into and has room to do as much or as little to it as you like. The one thing the home is missing which many buyers expect to see is a main bedroom with ensuite – there is scope to do this downstairs with some reconfiguring, if this is something you want or upstairs can become the adult’s domain.
The position I think we can all agree is brilliant – walking distance to everything you need, schools, shops, restaurants, train and park. Not to mention the easy access to CBD.
A home like this has the formula to get up and go, stock levels have been low in Boroondara for some time so if the buyers are there, this could be a fight. The pricing shows there have been a number of sales in Hawthorn that support with competition, high $2ms and maybe the next level is not out of the question.
Your enquiry has been successfully submitted.
You will be hearing from us soon!
Please ensure that you have entered your name, phone number, email address and selected at least one of our services!
|
4
Bedroom
|
2
Bathroom
|
1
Parkings
|
276sqm
Land Area
|
|
| Floor Plan | Agent |
Sold - 1:30 PM Feb 17 2024 |
Quote $2,300,000 - $2,500,000 |
West Facing |
Your enquiry has been successfully submitted.
You will be hearing from us soon!
Please ensure that you have entered your name, phone number, email address and selected at least one of our services!