
Really like the feel of 31 Loch
Like the proportions
Position
Good neighbours
High Quality Precinct
Property
Land
Building
Period façade
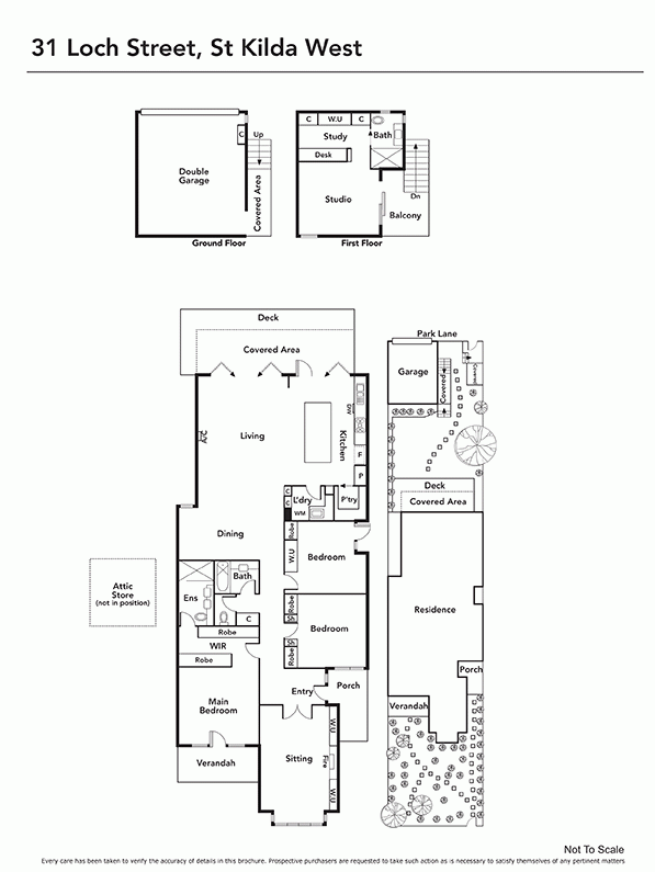
Rear living area is excellent and really good indoor outdoor flow
Excellent rear accommodation - love the studio
Garaging good although a little tight
Excellent master
Hydronic
Good two additional bedrooms
Front living room and study works for me
Flooring excellent
31 Loch is a home that should go well for downsizers, smaller families (probably semi grown up) and professional couples
Your enquiry has been successfully submitted.
You will be hearing from us soon!
Please ensure that you have entered your name, phone number, email address and selected at least one of our services!
|
4
Bedroom
|
3
Bathroom
|
2
Parkings
|
478sqm
Land Area
|
|
| Floor Plan | Agent |
Auction - 11:30 AM May 7 2016 |
Agent Declined Quote |
East Facing |
Your enquiry has been successfully submitted.
You will be hearing from us soon!
Please ensure that you have entered your name, phone number, email address and selected at least one of our services!