
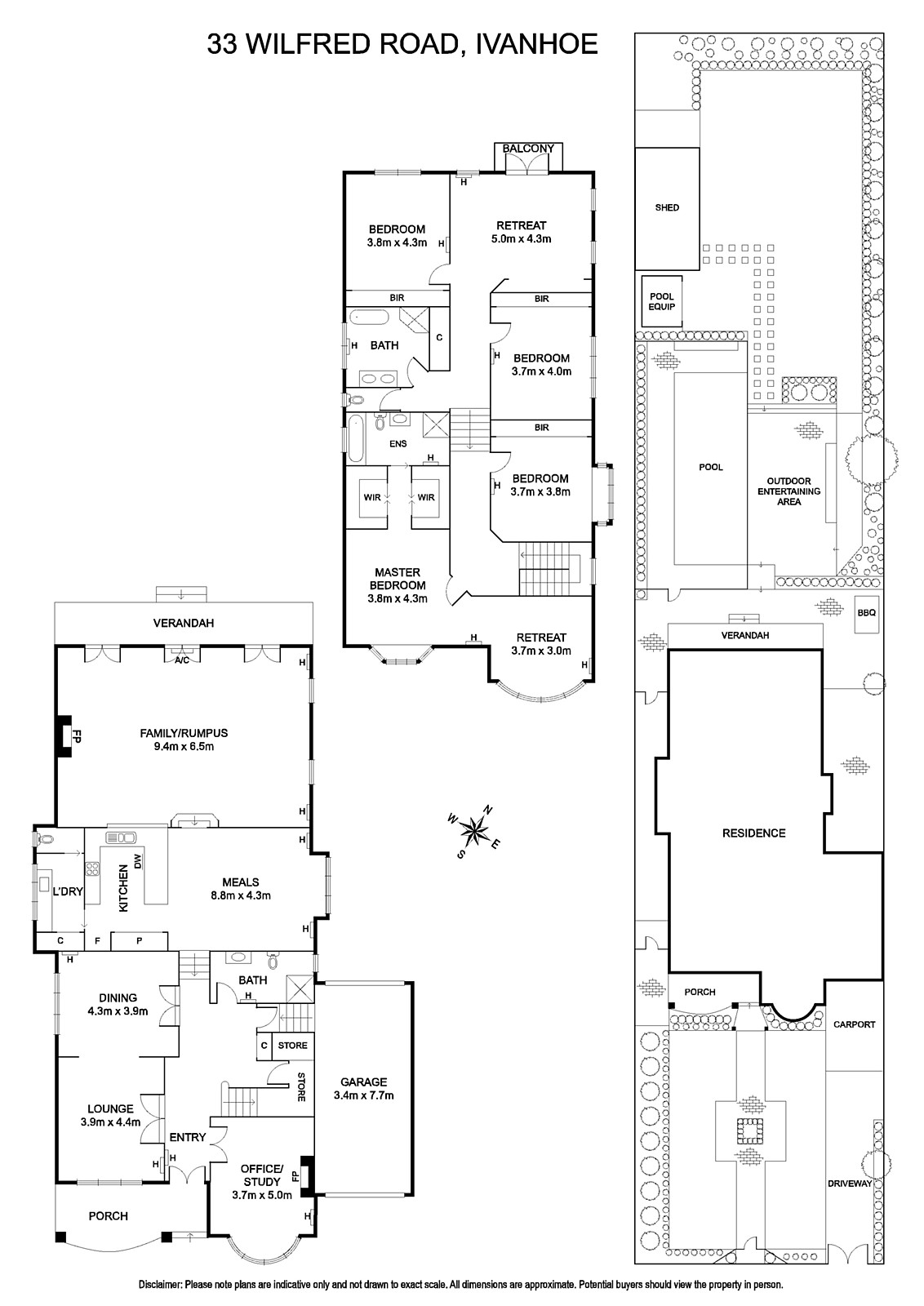
Wilfred Road - a big home on a big block that should tick the boxes for big family buyers. The BIG questions here will be concerning the flow of the home and the depth of the market for this style of house.
Stairs - the buyer of this home will not have a problem with them because they are a big part of how this home works internally. The sloping block means that the connection from the front to the rear living areas is accessed via a fairly substantial set of stairs, and this is also the case upstairs as well. While this can disrupt flow, it also means that younger families and older folk will need to deal with them as well. For some this will not suit, for others (i.e older kids) it may not be an issue. This is a factor that may impact market depth.
Block slope - it does drop off to the rear, and also at the front, although the home still sits high enough to have a decent street presence. The block is still big enough to offer useable land to the rear.
Price - not a lot of $2m plus sales in the immediate area, although those that are there are substantial including a $5,000,000 home not too far away. While you would not be pioneering at that price-range in this area, it is also not a huge club as well. Balance this however, by a market that right now sees fit to pay top dollar for larger blocks or for high quality homes and it becomes more a task of understanding the other bidders you will be up against, rather than where the vendor's reserve is.
Potential - There are even whispers (and some old planning permits) that hint at the possibility of subdividing the land to the rear. While this is a serious STCA issue, it can be seen as another possible feather in the cap for this property - next door has done it already.
Summary - big families will teens who need space like this home - it has everything that they want. Land buyers will like this home as well. Not to knock down, but to put their money into more dirt than house. This is a home that could be too big for some, but could also be a place that a family could live from 5 to 30 years (or longer!) if they like the feel and love the area.
Your enquiry has been successfully submitted.
You will be hearing from us soon!
Please ensure that you have entered your name, phone number, email address and selected at least one of our services!
|
5
Bedroom
|
3
Bathroom
|
1
Parkings
|
1,070sqm
Land Area
|
|
| Floor Plan | Agent |
Sold - 1:30 PM Aug 29 2015 |
Agent Declined Quote |
West Facing |
Your enquiry has been successfully submitted.
You will be hearing from us soon!
Please ensure that you have entered your name, phone number, email address and selected at least one of our services!
Crowd Numbers: 60 people
Bidderman: 2 bidders