

 
                                        
                                
                 
                
            A basic townhouse with many practical features, built to an average standard, with good flow, garaging and light (eg northern light into living spaces).
Low maintenance and lock and leave for smaller families - perhaps not the older, older generations, as no downstairs bedrooms - but what are your alternatives at $2m in Brighton? Apartment - yeah but you have body corp and no land. Houses - yeah, but they cost more.
Closer into the CBD such as Elwood and Albert Park, even Richmond these sorts of offering are $2.5m to $3m
In Brighton they are rarer.
So the negatives - well the street is average at best and the home is tired and it would need a real spruce up to get anything more than basic rent. As there is not a lot of land, growth will be determined by others dragging you up, rather than 36 Berwick setting the pace.
At the right price, if you want Brighton then this is ok.
Your enquiry has been successfully submitted.
You will be hearing from us soon!
Please ensure that you have entered your name, phone number, email address and selected at least one of our services!
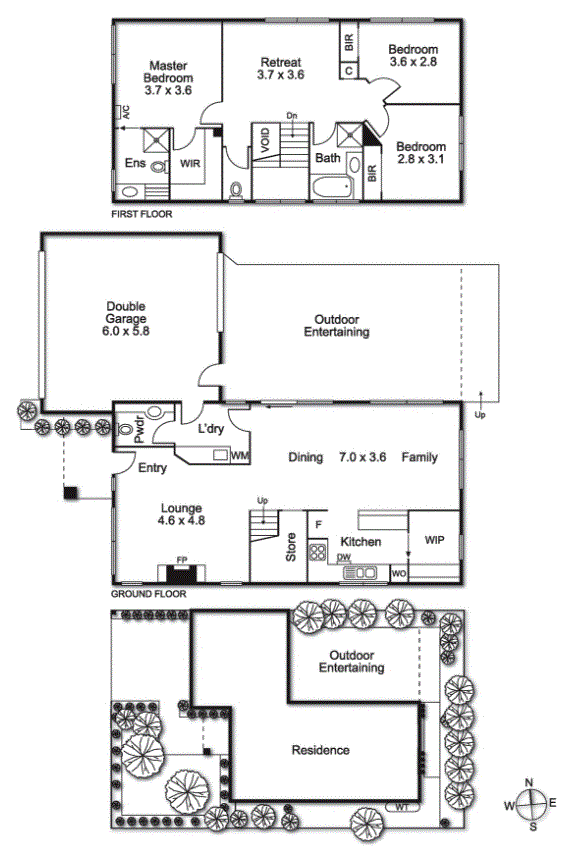
| 3 Bedroom | 2 Bathroom | 2 Parkings | 
                                                                    313sqm
                                                             Land Area | |
| Floor Plan | Agent | Sold - 11:00 AM Feb 17 2018 | Quote $1,800,000+ | East Facing | 
 
         
        Your enquiry has been successfully submitted.
You will be hearing from us soon!
Please ensure that you have entered your name, phone number, email address and selected at least one of our services!