

 
                                        
                                
                 
                
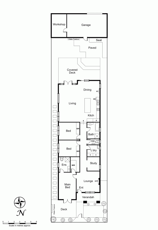
            4 Exhibition Street has many of the expected elements of a long term family home only on a smaller scale than many others in the area. With broad appeal for a small family, couple, downsizer or investor it presents as a 'ready-to-go' home with a simple, functional floor plan.
For families with children, bedrooms are neither too close nor too far apart. The second living area at the front gives flexibility, however, for many it is really too small to be functional. Buyers may need to be comfortable that this is more a one living area home.
Adding to the appeal is the location - smack in the middle of McKinnon and Bentleigh lifestyle and train stations, moments from Allnutt Park and in the highly sought after McKinnon Secondary School zone.
The home appears to have been a labour of love for its current owners, angled towards an entertaining and outdoor lifestyle, although the garden is made smaller by a large deck and outbuildings and may have the tendency to be shaded due to southerly orientation of the block. Parking and additional storage space off the rear laneway add convenience.
Some buyers may wish to investigate the sub-station on the corner of Wheatley Rd and Exhibition and familiarise themselves with its use.
For buyers who have missed out on larger versions of this home, 4 Exhibition Street may provide the location and number of rooms, just on a much smaller scale.
Your enquiry has been successfully submitted.
You will be hearing from us soon!
Please ensure that you have entered your name, phone number, email address and selected at least one of our services!
| 3 Bedroom | 2 Bathroom | 1 Parkings | 
                                                                    396sqm
                                                             Land Area | |
| Floor Plan | Agent | Sold - 11:30 am Aug 23 2014 | Quote $850,000 - $900,000 | South Facing | 
 
         
        Your enquiry has been successfully submitted.
You will be hearing from us soon!
Please ensure that you have entered your name, phone number, email address and selected at least one of our services!