
A smart renovation and a good period feel give this property some WOW factor that should generate some emotion in visitors. Combine this with the position close to Princes Park and the Lygon Street tram and cafes and this will also tick the boxes of position buyers as well.
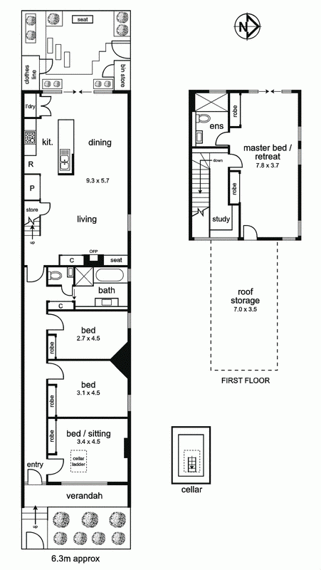
The extra wide frontage of this block has allowed for a flexible floor plan that maximises the bedrooms sizes in terms of width instead of running down the home, meaning that there is still room for a decent open plan living area to the rear - something that can often be missing in these types of homes. Upstairs is completely dedicated to the spacious main bedroom and study and the roof storage is also very large and another aspect that is overlooked in many period homes.
The only thing really missing from this home is on-site parking, however the street parking is fairly substantial and includes permit zones as would be expected.
Overall this is an attractive and well-rounded package characterised by some good spaces and finishes that would keep a family, downscaler or a couple quite easily. If you don't need onsite parking, and don't mind the corner position, then this home should tick a lot of boxes for a lot of buyers.
.
Your enquiry has been successfully submitted.
You will be hearing from us soon!
Please ensure that you have entered your name, phone number, email address and selected at least one of our services!
|
4
Bedroom
|
2
Bathroom
|
0
Parkings
|
177sqm
Land Area
|
|
| Floor Plan | Agent |
Auction - 1:30 pm Sep 20 2014 |
Quote $1,500,000 - $1,650,000 |
West Facing |
Your enquiry has been successfully submitted.
You will be hearing from us soon!
Please ensure that you have entered your name, phone number, email address and selected at least one of our services!