
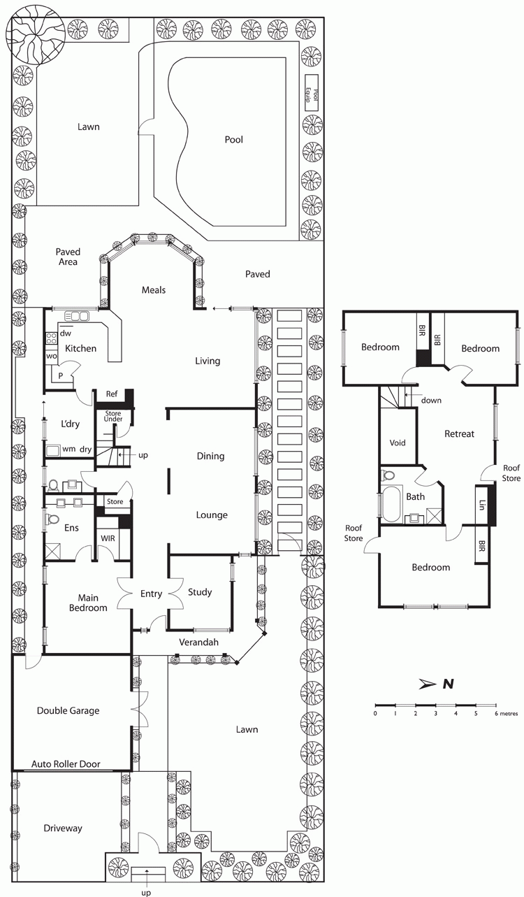
This is a nice clean family offering with a solid floorplan - very livable and very practical. It's a functional home, and is likely to work for many family buyers wanting to be close to schools. The rooms are generally in the right places, with three distinct living areas and well separated bedrooms, the main downstairs.
The home has some age under its belt which may be helpful when it comes to price. It lacks some of the ‘wow’ of recent new build sales such as 47 Regent, 35 Comer Road and 87 Baird Street all recently selling between $2.3-2.5million, and is perhaps missing some of the new expected lifestyle requirements (ie. Butler’s pantry), however, it offers the opportunity to tweak the floorplan to include some of these things in the future.
Upstairs is built into the roof line so ceiling heights are lower, but for those who don’t mind that, the home offers a good back yard with no real overlooking concerns, double garaging and good flowing living areas with the indoor/outdoor connection working well, especially for younger families.
While positioned close enough for a leisurely stroll to both Hampton Street and Church Street shops, distance to Hampton and Middle Brighton Stations is a little over 2km and many would consider this too far if relying on public transport to commute on a regular basis.
For those buyers who can’t afford the early to mid $2million price tag for the newer homes in the area, 47 Baird Street is likely to be a good alternative for many, creating interest and competition on the day.
Your enquiry has been successfully submitted.
You will be hearing from us soon!
Please ensure that you have entered your name, phone number, email address and selected at least one of our services!
|
4
Bedroom
|
2
Bathroom
|
2
Parkings
|
662sqm
Land Area
|
|
| Floor Plan | Agent |
Sold - 11:30 am Mar 22 2014 |
Agent Declined Quote |
West Facing |
Your enquiry has been successfully submitted.
You will be hearing from us soon!
Please ensure that you have entered your name, phone number, email address and selected at least one of our services!
Crowd Numbers: 75 people
Bidderman: 4 bidders