

 
                                        
                                
                 
                
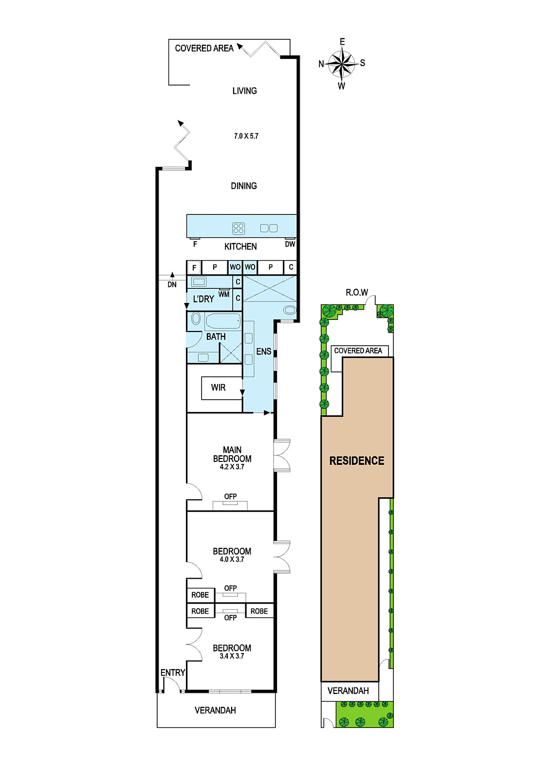
            A lot to like about 49 Gardner Street Richmond - look, feel, flow and light with the obvious shortcoming for many of no car access.
If you like single fronter period homes then 49 at this price range is one of the better ones you will see. The renovation is top notch with the rear living area being the highlight for me - good space, good light and good feel (repeating these words aren't I?) AND good width. It's that extra metre that makes the difference everytime between a feeling "of seen these before" to "wow this feels more spacious" - it only take's a metre and this is what Gardner has.
The master and ensuite is above average for this type and this price range, in this area. And the area is typical Richmond, with all the usual plusses and minuses.
Are there any negatives? Well really only the car parking and if it had it then you could add an extra hundred thousand or two onto the end price.
How will this go at auction? Very strongly, for those that don't love their car.
Your enquiry has been successfully submitted.
You will be hearing from us soon!
Please ensure that you have entered your name, phone number, email address and selected at least one of our services!
| 3 Bedroom | 2 Bathroom | 0 Parkings | 
                                                                    246sqm
                                                             Land Area | |
| Floor Plan | Agent | Sold - 10:00 AM Oct 22 2016 | Quote $1,650,000+ | East Facing | 
 
         
        Your enquiry has been successfully submitted.
You will be hearing from us soon!
Please ensure that you have entered your name, phone number, email address and selected at least one of our services!