

 
                                        
                                
                 
                
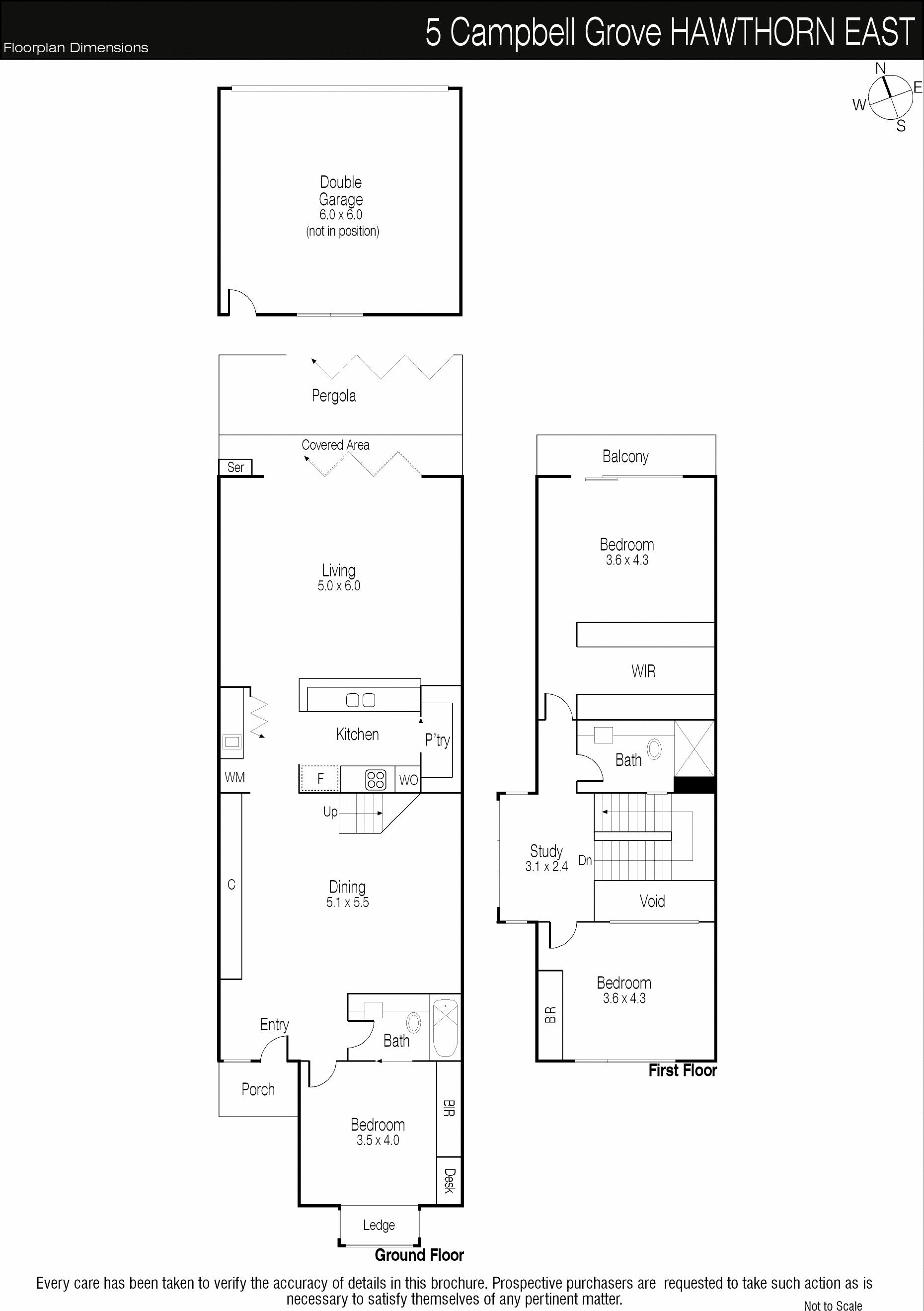
            5 Campbell Grove is a well located entry level townhouse with a solid floorplan, good garaging and multiple light living areas (a big plus at this price level).
Bedrooms are a positive key - upstairs and downstairs bedroom options (meaning separation for guests, children from main bedroom – as well downstairs bedroom option would appeal to downsizers).
So entry level, young and older couples – all groups may have some appeal and investors with nothing to spend could also see some plusses – at auction there will be competition.
Rear garaging also works
Location to schools, Camberwell shops and public transport is good and traffic isn’t too bad considering the area – due to street width.
Overall a nice offering turning on $2m in a market starved of good offerings.
Your enquiry has been successfully submitted.
You will be hearing from us soon!
Please ensure that you have entered your name, phone number, email address and selected at least one of our services!
| 3 Bedroom | 2 Bathroom | 2 Parkings | 
                                                                    302sqm
                                                             Land Area | |
| Floor Plan | Agent | Sold - 12:00 PM Aug 31 2019 | Quote $1,650,000 - $1,800,000 | North Facing | 
 
         
        Your enquiry has been successfully submitted.
You will be hearing from us soon!
Please ensure that you have entered your name, phone number, email address and selected at least one of our services!