
5 Somerset Street, Richmond
Summary line:
739/1000 – a flexible industrial-meets-period Richmond home with soul, studio and strong inner-city appeal. Not perfect, but genuine quality and a smart long-term hold.
POSITION (stronger than it first looks)
- Wide street, good feel – not hemmed in like many Richmond lanes.
- Micro-location beats first impression – better access, amenity and general feel than you’d guess from the map.
- Rear car access – big tick for inner-city: secure parking, great for WFH or small business.
Position feel: Solidly above average for Richmond; not blue-ribbon, but no handbrake either – a good base for future capital growth.
PROPERTY (character + flexibility + a couple of quirks)
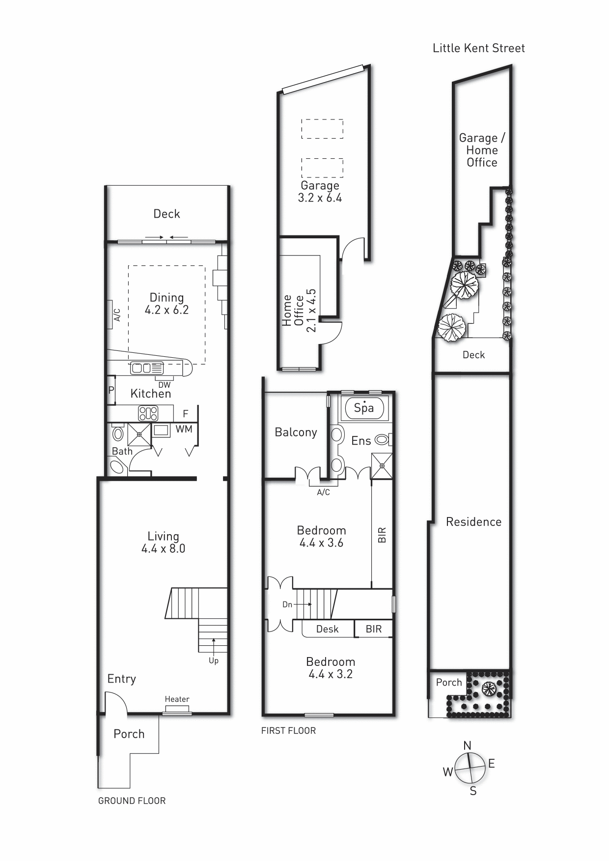
- Industrial warehouse behind period front – strong emotional pull for creatives, professionals and families who like something with a bit of edge.
- Living spaces flow well – the home “makes sense” as you move through it; there’s a vibe rather than a collection of rooms.
- No downstairs bedroom / tight staircase – rules out some downsizers and mobility-conscious buyers; a genuine drag on the rating.
- Studio over garage + viewing deck – big value add: WFH, teen retreat, guest zone, or intergenerational space. The deck is more “moments” than everyday, but it’s a little joy button for future buyer competition.
Property feel: A very good, flexible inner-city home with proper studio value; marked down mainly by stairs/no ground-floor bed and limited garden.
PRICE & VALUE (why 739 still says “buy”)
Quote feels light for its appeal – the home has more depth and flexibility than the number suggests.
739/1000 says:
- Well above “average Richmond townhouse”.
- A home you’d fight for at the right level.
- The rating assumes you don’t pay crazy money for the cool factor – but within a sensible range, it’s the sort of property that should resell well because it ticks multiple buyer types (single, couple, family with teens, downsizer, investor).
Price/Value feel:
At quote – very good value. At a pushed but sensible result – still defensible, because the flexibility + character combo is scarce.
What 739/1000 Means in Plain English
Would I buy it? Yes.
Why?
- It feels good when you walk in.
- It works for a lot of different life stages.
- The studio and rear access are genuine advantages, not brochure spin.
Why not higher than 739?
- No ground-floor bedroom.
- Tight stair.
- Not quite in the top street/precinct or with a big family garden that would launch it into mid-800s.
Your enquiry has been successfully submitted.
You will be hearing from us soon!
Please ensure that you have entered your name, phone number, email address and selected at least one of our services!
|
3
Bedroom
|
3
Bathroom
|
1
Parkings
|
155sqm
Land Area
|
|
| Floor Plan | Agent |
Auction - 1:00 PM Dec 6 2025 |
Quote $1,850,000 - $2,000,000 |
North Facing |
Your enquiry has been successfully submitted.
You will be hearing from us soon!
Please ensure that you have entered your name, phone number, email address and selected at least one of our services!