

 
                                        
                                
                 
                
            This small home should be reviewed for what it is - and it is - an option at this price in inner eastern city.
This low maintenance city base in a location which is walking distance to shops, restaurants and transport offers easy & quick access to the city and other precincts around town. This home offers an easier Melbourne lifestyle.
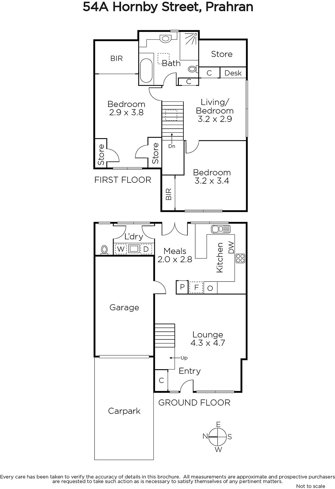
Downstairs the living area is smaller than preferred but in contrast, the upstairs has some Wow - it's bigger & lighter. Two bedrooms may limit the buyer profiles but this home could be improved (by those wanting to live here longer term) with the creation of a third bedroom upstairs or an extension off the kitchen. Look at next door for how new paint can re-freshen the home.
The garage and driveway is a bonus in this precinct and will attract those with cars they love or people who travel and need a lock n leave home.
It's on the corner of two local through roads and may have noise at times. Three of its boundaries are roads or driveways and one boundary is shared with its neighbour - this provides space and light but also noise from passing foot traffic and cars - however this is not unusual in inner city urban living.
Investors, singles and couples, both young and those not quite ready to retire, will look at this.
The home is dated but could be the right home for the right buyer, especially if the price is right.
Your enquiry has been successfully submitted.
You will be hearing from us soon!
Please ensure that you have entered your name, phone number, email address and selected at least one of our services!
| 2 Bedroom | 1 Bathroom | 2 Parkings | 
                                                                    117sqm
                                                             Land Area | |
| Floor Plan | Agent | Sold - 12:30 PM Mar 4 2017 | Quote $900,000 - $1,000,000 | East Facing | 
 
         
        Your enquiry has been successfully submitted.
You will be hearing from us soon!
Please ensure that you have entered your name, phone number, email address and selected at least one of our services!
Crowd Numbers: 0 people
Bidderman: 1 bidders