
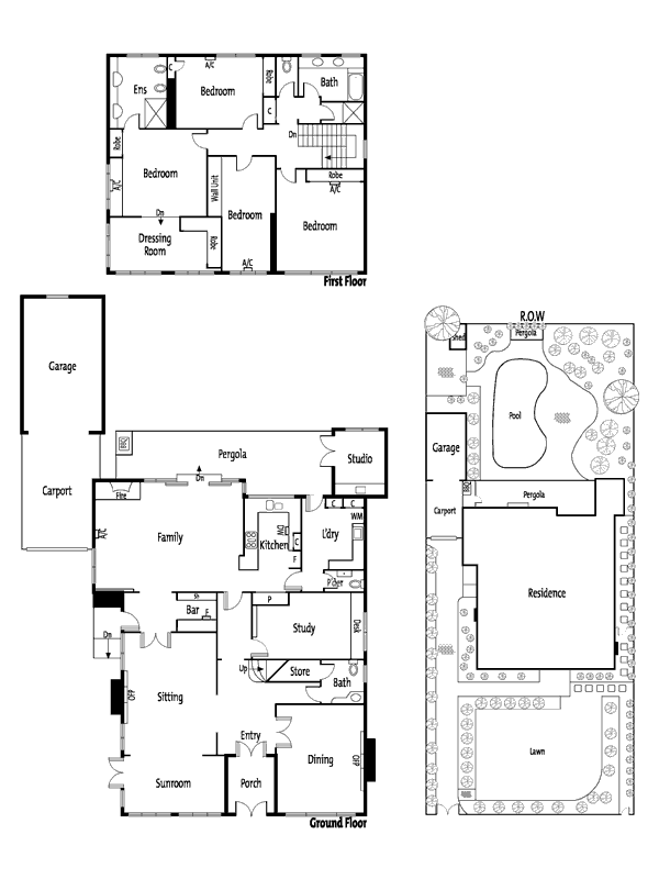
Signature Gascoigne Estate street and with Central Park a stone's throw away the position of this property is the key plus. House is very liveable yet many see some work head here - the rear open plan living area is a little tight - yet as this is not affected by the first floor above - any renovation work would be rather straightforward therefore. In addition some basic floor plan tweaks (particularly to bathroom/bedroom areas) would be beneficial. The backyard is not a bad size and is deceiving as the pool and garage do take up some primary space and the access via the rear ROW is a nice bonus. Although the house has good street presence, the façade is not a classic one for the precinct (i.e. Edwardian) yet it could be further improved with some restoration work (i.e. reclaim veranda) and updated landscaping.
Your enquiry has been successfully submitted.
You will be hearing from us soon!
Please ensure that you have entered your name, phone number, email address and selected at least one of our services!
|
4
Bedroom
|
2
Bathroom
|
2
Parkings
|
815sqm
Land Area
|
|
| Floor Plan | Agent |
Sold - 12:30pm Feb 18 2012 |
Quote $2,500,000+ |
South Facing |
Your enquiry has been successfully submitted.
You will be hearing from us soon!
Please ensure that you have entered your name, phone number, email address and selected at least one of our services!
Crowd Numbers: 130 people
Bidderman: 1 bidders