

 
                                        
                                
                 
                
            A tall, attractive facade and park – these are the first two things you see when arriving at 58 William Street.
This row of terrace homes has a proven street presence and the street itself – although it changes along its length – at this point is an attractive place. Situated away from the train station and just down from the shops and tram-line, this quieter end has the park creating a peaceful family feel in the middle of an urban precinct. And speaking of the precinct, it’s eclectic and so will be the mix of buyers for this home.
Singles, couples, investors and small families will look at this one. And by small, I mean with one or two children - of any age.
This period home is move in ready although it could be possible to improve the flooplan. As it stands now, the front and rear have a Wow feeling but the middle lets it down a little. This is not unusual for terrace homes and it could benefit from thoughtful interior design.
Despite the northern neighbour being a block of flats, there is a feeling of privacy – the driveway and acces to this block is away from the home and the building is not obtrusive relative to the size of the terrace homes.
There isn’t a lot to do in this home if you didn’t want to – good living spaces, modern, period charm, off street parking via rear lane, transport, parkland – some good ingredients for inner city living.
The issue is how to beat your competitors as they could gravitate from other parts of the city for this package ie, the price for this level of accommodation in an inner city location will be the ultimate attraction.
Your enquiry has been successfully submitted.
You will be hearing from us soon!
Please ensure that you have entered your name, phone number, email address and selected at least one of our services!
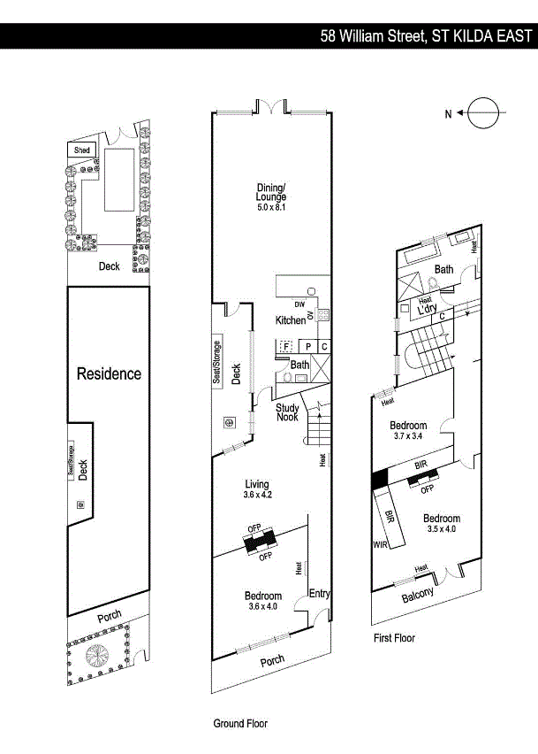
| 3 Bedroom | 2 Bathroom | 1 Parkings | 
                                                                    220sqm
                                                             Land Area | |
| Floor Plan | Agent | Sold - 11:00 AM Sep 10 2016 | Agent Declined Quote | East Facing | 
 
         
        Your enquiry has been successfully submitted.
You will be hearing from us soon!
Please ensure that you have entered your name, phone number, email address and selected at least one of our services!
Crowd Numbers: 100 people
Bidderman: 6 bidders