
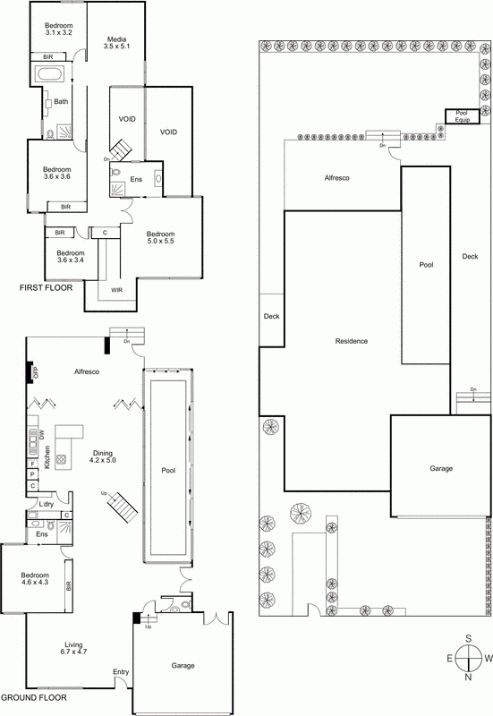
This prestige Miami resort-style new home was built in May 2008, architecturally designed for the family who wants all the modern features and minimal outdoors. Ground floor is open planned and allows the space for entertaining. High-quality Kitchen connects well with living/dining areas and fire-warmed al fresco space. With five bedrooms, three bathrooms + powder room, heated lap pool and double-auto-garage your family desires are accommodated. Under the deck is a 13,000L water-storage that reticulates to the house and garden. Busy Centre road can be a concern for some, although this negative can be a positive as you are walking distance to Bentleigh's shopping strip and transport.
Your enquiry has been successfully submitted.
You will be hearing from us soon!
Please ensure that you have entered your name, phone number, email address and selected at least one of our services!
|
5
Bedroom
|
3
Bathroom
|
2
Parkings
|
577sqm
Land Area
|
|
| Floor Plan | Agent |
Private Sale |
Agent Declined Quote |
South Facing |
Your enquiry has been successfully submitted.
You will be hearing from us soon!
Please ensure that you have entered your name, phone number, email address and selected at least one of our services!