
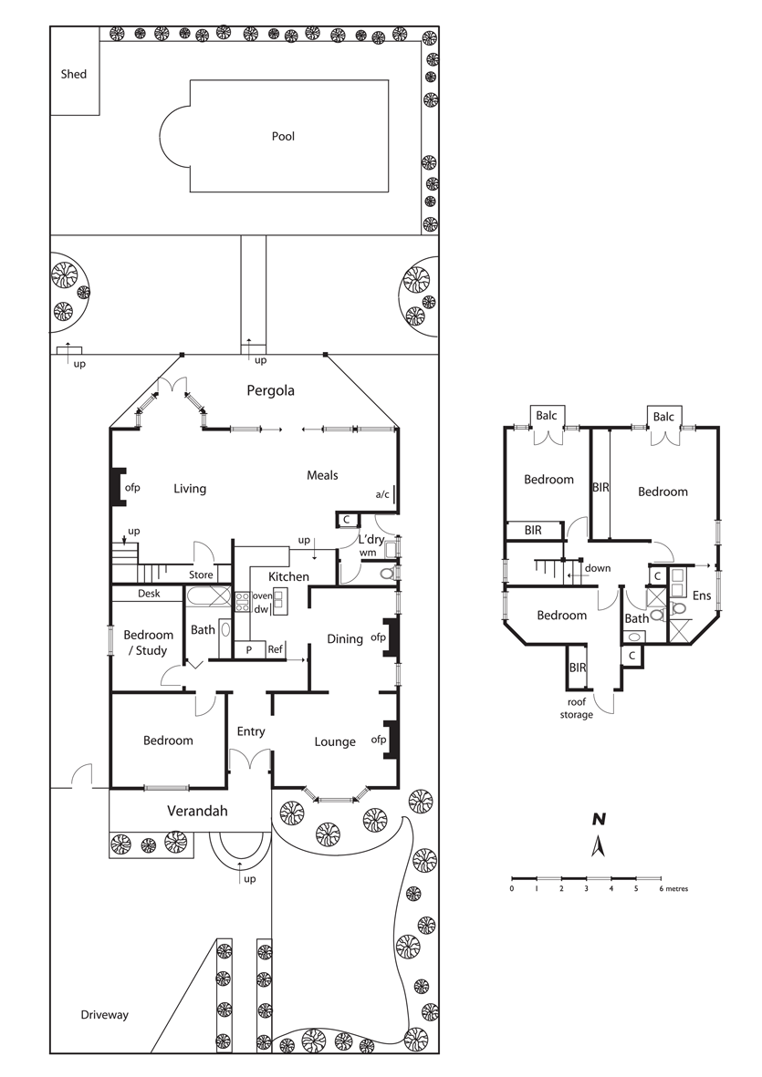
This updated Californian Bungalow is in a great location, and enjoys a prized northern rear orientation. Some may find the floor plan a little tricky - it has a tight laundry, a couple of smaller bedrooms, and a central kitchen. Yet with some basic tweaks, these could be easily addressed, as the volume overall is ideal for an average family. The rear open-plan living area connects nicely to the backyard, which is a reasonable size and quite private. A concern for some could be a lack of covered car parking - although a carport could be built at the front, subject to council approval. The position is a key plus and will protect capital growth going forward. Mills Street is a good one: it is close to Hampton Street shops, Hampton station and local schools. And this property is within the quieter part of the street, which is an added bonus. Overall, this package is worth serious thought, as the fundamentals are very good.
Your enquiry has been successfully submitted.
You will be hearing from us soon!
Please ensure that you have entered your name, phone number, email address and selected at least one of our services!
|
4
Bedroom
|
3
Bathroom
|
2
Parkings
|
627sqm
Land Area
|
|
| Floor Plan | Agent |
Sold - 12:30 pm Oct 5 2013 |
Agent Declined Quote |
North Facing |
Your enquiry has been successfully submitted.
You will be hearing from us soon!
Please ensure that you have entered your name, phone number, email address and selected at least one of our services!