Undisclosed
Undisclosed
65 Spray Street ELWOOD

65 Spray Street ELWOOD

Benefits

Concerns

Bathrooms - Fixtures + Fittings
Coffee/Eateries 4+ Distance
Landscaping - Mature Gardens
Consistent Theme
Mal James
Mal James
0408 107 988
[email protected]

My name is Mal James. I initially reviewed 65 Spray Street ELWOOD on .


Advice that Matters

James Buy Sell works across Melbourne’s top-end property market to help our clients make smart real estate decisions.

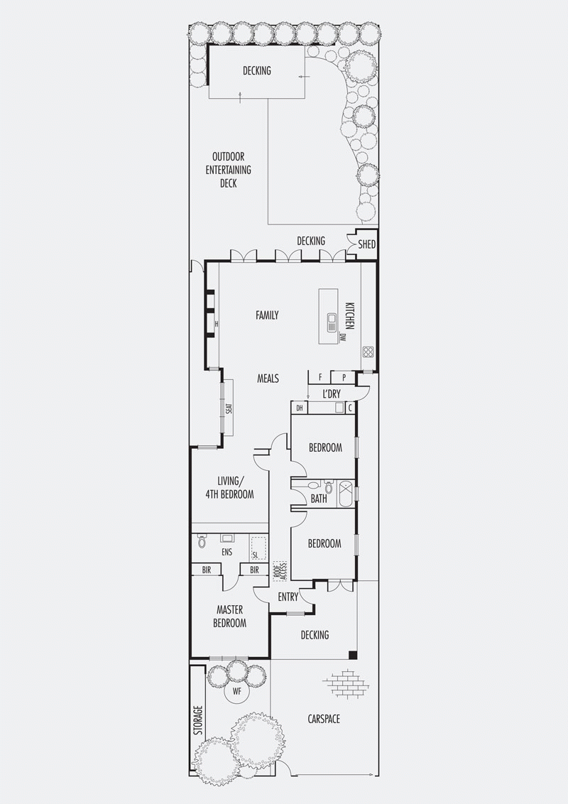
3
Bedroom
2
Bathroom
2
Parkings
339sqm
Land Area
Floor Plan Agent

Sold - 3.00pm Feb 23 2013

Agent Declined Quote

Full James Rating Sheet

Advice that Matters

James Buy Sell works across Melbourne’s top-end property market to help our clients make smart real estate decisions.