
Apartment 7 in the Evion apartment building may well be the best apartment in the building for downsizers and possibly for our client who could not only be enjoying city views but also views of her granddaughters in Rae St below!
This smaller apartment building has not seen many sales since it was first constructed over a decade ago which is a good sign of its liveability and all except one are owner occupied according to the agent. The top level has double storey apartments, the north side of the building has apartments with privacy frosting and the ground floor below has limited light. Apartment 2 on the ground floor sold this year for more than the quote of this Apartment 7 and it looks smaller in size.
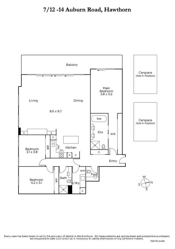
What stands out about apartment 7 is its proportions and placement in the building. It is away from the main road facing the city with a large usable balcony spanning the width of the living area as well as the master bedroom and provides city and borrowed garden views. The living area seems large for the building and also relative to other 3 bedroom apartments and the main bedroom is a good design and position as it offers privacy and space. However, although it feels like a family sized apartment, the kitchen feels smaller than preferred especially for those who like to entertain and/or pantry storage is needed for the home chef.
There are 2 car parks and a storage room on title according to the agent, so we ask that your solicitor confirm this.
Apartment 7 has been freshened up with new carpet and paint for this sale and subject to a Building inspection, it feels move in ready.
According to the agent of Apartment 2, it sold at auction above the range with 4 bidders and we should expect competition on Apartment 7.
Apartments in Melbourne are not usually good investments but buying this for a family member and as a family utility makes good sense here as not only will multiple generations benefit emotionally/spiritually, it could provide practical options for many years to come.
Your enquiry has been successfully submitted.
You will be hearing from us soon!
Please ensure that you have entered your name, phone number, email address and selected at least one of our services!
|
3
Bedroom
|
2
Bathroom
|
2
Parkings
|
154sqm
Land Area
|
|
| Floor Plan | Agent |
Sold - 10:30 AM May 20 2023 |
Quote $1,600,000 - $1,700,000 |
|
Your enquiry has been successfully submitted.
You will be hearing from us soon!
Please ensure that you have entered your name, phone number, email address and selected at least one of our services!