

 
                                        
                                
                 
                
            The facade of this home belies the spaces behind. The property is ideally suited to smaller families who don't require McKinnon High School zoning and downsizers looking for a good single storey option (although there are stairs from the house to the garden).
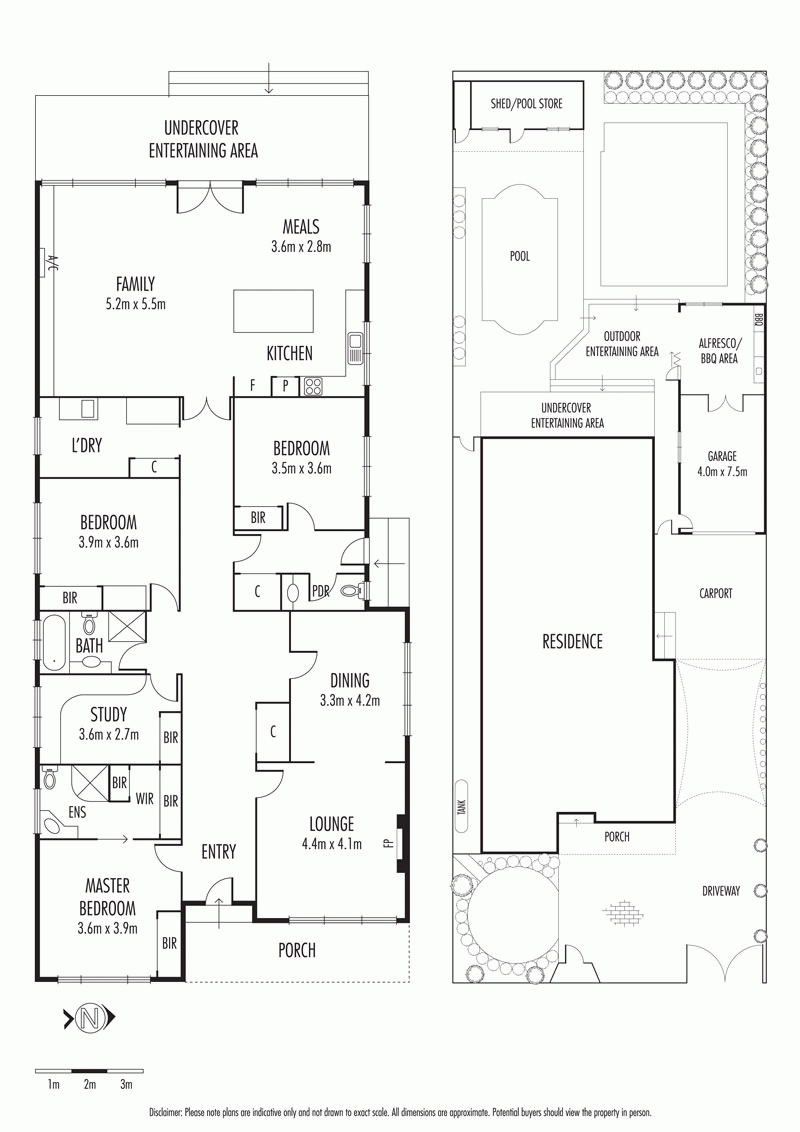
The home has been lovingly maintained with good positioning of the two living areas (front and back) and bedrooms. The main bedroom is on the small side, however, if buyers were wanting a larger room, WIR and ensuite, there is the option to forgo the study, and increase the sizes. The two children's/spare bedrooms are both a reasonable size.
The rear living area is a real positive for this home with good spaces and plenty of windows, including some along the northern boundary. There are also full views to the pool and back yard from both the kitchen and living area. The outdoor 'verandah' and undercover BBQ spaces have been carefully planned to maximise their use, especially given Melbourne's unpredictable weather, when hoping for good weather when entertaining.
Concens - Whitmuir Road carries some local traffic between Centre and McKinnon Roads, although Thomas and Wheatley are the main thoroughfares. Other concerns may include the number of neighbours. Only one house block back from McKinnon Road, there are three properties to the northern boundary rather than the usual one and being one block back, there may be some traffic noise from McKinnon Road, although I didn't hear any during my inspection. Finally for families needing the McKinnon High School Zone - Whitmuir is not in it.
Overall this home is a goodie, with a great feel, good spaces and an easy walk to McKinnon shops, station and Allnut Park which is likely to appeal to many buyers.
Your enquiry has been successfully submitted.
You will be hearing from us soon!
Please ensure that you have entered your name, phone number, email address and selected at least one of our services!
| 4 Bedroom | 2 Bathroom | 4 Parkings | 
                                                                    776sqm
                                                             Land Area | |
| Floor Plan | Agent | Sold - 1:30 pm May 31 2014 | Quote $1,300,000+ | West Facing | 
 
         
        Your enquiry has been successfully submitted.
You will be hearing from us soon!
Please ensure that you have entered your name, phone number, email address and selected at least one of our services!
Crowd Numbers: 90 people
Bidderman: 4 bidders