
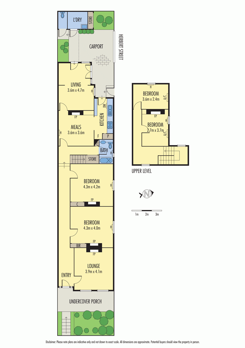
This is a proud home with classic appeal that has probably caught the eye of many of the locals passing by for years. Sitting up high off the street, and the side street access from Herbert Street give this home some good initial appeal, however this must be balanced with the floor plan internally which is not ideal.
This location is on a relatively busy street, however the surrounding pocket of shops is very convenient and this will probably outweigh the traffic noise for many buyers. Overall, this is a green for location. The rear car space is good - but it isn't completely clear if you could put a carport there, and I didn't see a crossover on my inspection (although it was becoming dark). The home itself presents something of a conundrum. The front three rooms are sized very well, and give ample space and the high ceilings you might expect for this vintage. The back of the home and upstairs however, do not share the same dimensions as the front rooms. The bedroom and living size, and the singular bathroom may be deal breakers for some. Whether the flooplan can be modernised will depend on your future plans, imagination and bank balance as there will probably be some weighing up to be done.
The distinct lack of stock in this area, combined with the location and the street presence should generate some good interest in this offering at the quoted price. How the market treats this home in terms of its potential will be a major factor in how it performs at auction.
Your enquiry has been successfully submitted.
You will be hearing from us soon!
Please ensure that you have entered your name, phone number, email address and selected at least one of our services!
|
4
Bedroom
|
1
Bathroom
|
1
Parkings
|
201sqm
Land Area
|
|
| Floor Plan | Agent |
Sold - 12:00 pm Sep 6 2014 |
Quote $1,100,000 - $1,200,000 |
West Facing |
Your enquiry has been successfully submitted.
You will be hearing from us soon!
Please ensure that you have entered your name, phone number, email address and selected at least one of our services!
Crowd Numbers: 100 people
Bidderman: 4 bidders