.gif)
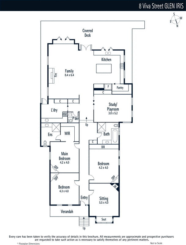
This well-renovated double-fronted Victorian timber home is located in a popular part of Glen Iris and will appeal to families looking for short and long term flexibility. Young families will appreciate the well positioned master bedroom and families with teenagers will be able to utilise the study and sitting room when looking for separation. What may concern some is the property’s southern orientation as it does impede natural light into the kitchen and family room. This has reduced the rating on the property from the mid 700s down to the mid 600s. The backyard is private and well-landscaped and offers ample space for children and parents to play and entertain in. Off-street car parking is available through remote control gates; however a lack of carport or garaging may be an issue for some. Located in a nice street with good neighbours and proximity to the many shops and cafes in High Street and Wattletree Road and schools this property is a goodie.
Good aesthetics and good design make this a good home for the smaller family seeking a modern lifestyle. However, the south facing rear could be a concern for those wanting a light and bright home as the design has not been orientated to capture the light and the many small windows do not allow light to penetrate into the rooms. Having said that, this single level home has a great street presence, a stylish interior which has retained the period charm and practical features such as loads of storage and one of the best laundries I have seen this year. The big cooks kitchen and walk-in pantry coupled with a good connection to the outside make it a great house to entertain and the study could make a great media room, particularly as the kids grow. However, the stepped up backyard is not ideal in terms of useability and outlook from the kitchen/family area but the cul-de-sac nature of the street, including the playgound a few doors down, will suit families with younger children. There is no undercover parking here, but rather tandem off street parking for 3 cars, although there may be scope to add a carport (STCA) adjacent to the sitting room. Overall, this is a good looking, good feeling home in a practical location to access transport options for the city, shopping and school commutes.
Your enquiry has been successfully submitted.
You will be hearing from us soon!
Please ensure that you have entered your name, phone number, email address and selected at least one of our services!
|
4
Bedroom
|
2
Bathroom
|
3
Parkings
|
648sqm
Land Area
|
|
| Floor Plan | Agent |
Sold - 10:30am Aug 11 2012 |
Quote $1,500,000+ |
South Facing |
Your enquiry has been successfully submitted.
You will be hearing from us soon!
Please ensure that you have entered your name, phone number, email address and selected at least one of our services!
Crowd Numbers: 150 people
Bidderman: 5 bidders