
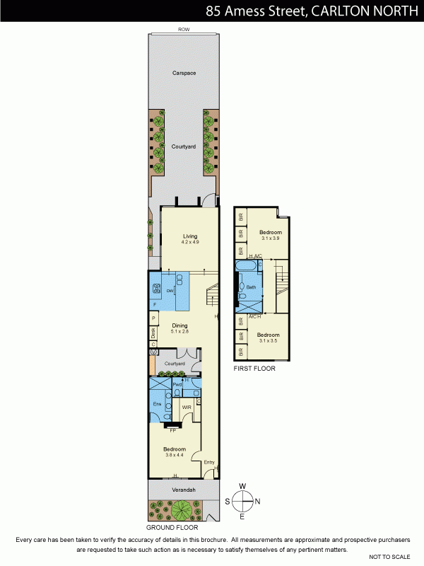
This is a good example of a renovated terrace home done well - a workable floorplan, good feel throughout and rear carparking all set this home in good stead. The internal courtyard is also a valuable source of light and works well. 3 bedrooms and only one real living area may not suit buyers looking for a measure of living separation, however young professionals, couples or a young family looking at growing into the home as a 5-10 year option could see merit here. There are a number of un-renovated terraces on the market, so how this performs price-wise will be watched with interest by renovators and investors as well.
Your enquiry has been successfully submitted.
You will be hearing from us soon!
Please ensure that you have entered your name, phone number, email address and selected at least one of our services!
|
3
Bedroom
|
2
Bathroom
|
2
Parkings
|
204sqm
Land Area
|
|
| Floor Plan | Agent |
Sold - 12:30 pm Oct 18 2014 |
Agent Declined Quote |
West Facing |
Your enquiry has been successfully submitted.
You will be hearing from us soon!
Please ensure that you have entered your name, phone number, email address and selected at least one of our services!