

 
                                        
                                
                 
                
            In a nutshell…
 
PPP’s – the Price and the Position are good on Neptune (would rate well over 600 as a block of land)
 
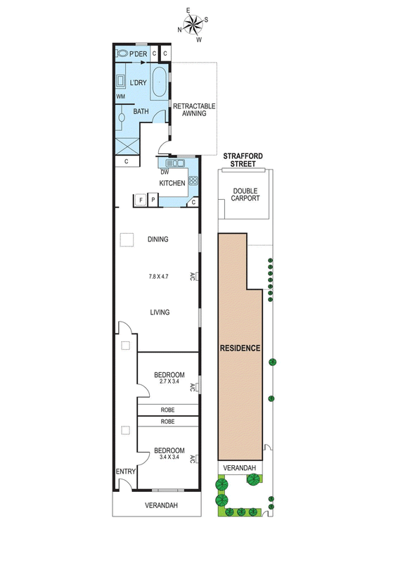
Property – good land (would be great if better light – that is fixable with a rebuild STCA as you have 6m block, but not in its current format except via skylights) – poor house – but in the scheme of things good renter and nothing really to do.
 
The front 3 bedrooms or rooms are good after that it falls away – from there it needs a complete rebuild at some stage in the future or STCA start again (no Heritage and there is a market for new builds – meaning get somebody else to do it). 2nd story is ok (next door and STCA)
 
Why is this good – you are buying a block of land with a seemingly low maintenance renter and brilliant car access.
 
If you are buying well, the home (cashflow) is almost free.
 
Mal
Your enquiry has been successfully submitted.
You will be hearing from us soon!
Please ensure that you have entered your name, phone number, email address and selected at least one of our services!
| 3 Bedroom | 1 Bathroom | 2 Parkings | 
                                                                    229sqm
                                                             Land Area | |
| Floor Plan | Agent | Sold - 12:00 PM Dec 4 2021 | Quote $1,600,000 - $1,700,000 | East Facing | 
 
         
        Your enquiry has been successfully submitted.
You will be hearing from us soon!
Please ensure that you have entered your name, phone number, email address and selected at least one of our services!