
This freestanding Edwardian lies on the cusp of Princes Hill and on a throroughly impressive block of land. The house needs some real work, but if done right should pay off. The backyard is a highlight and offers serious room to go back and up (STCA)? The rear car access is good and should allow 2 cars to get in comfortably. A proud home right now, this should make for a proud owner in the future if the right choices are made. Lots of positives here, this may mean that there could also be competition. A sound bidding stragety would be wise to employ for this auction.
We have rated this as land only due to the work needed on the home.
Your enquiry has been successfully submitted.
You will be hearing from us soon!
Please ensure that you have entered your name, phone number, email address and selected at least one of our services!
|
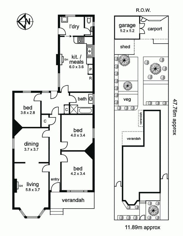
3
Bedroom
|
1
Bathroom
|
2
Parkings
|
568sqm
Land Area
|
|
| Floor Plan | Agent |
Sold - 12:30 pm Oct 25 2014 |
Quote $2,500,000+ |
East Facing |
Your enquiry has been successfully submitted.
You will be hearing from us soon!
Please ensure that you have entered your name, phone number, email address and selected at least one of our services!