
|
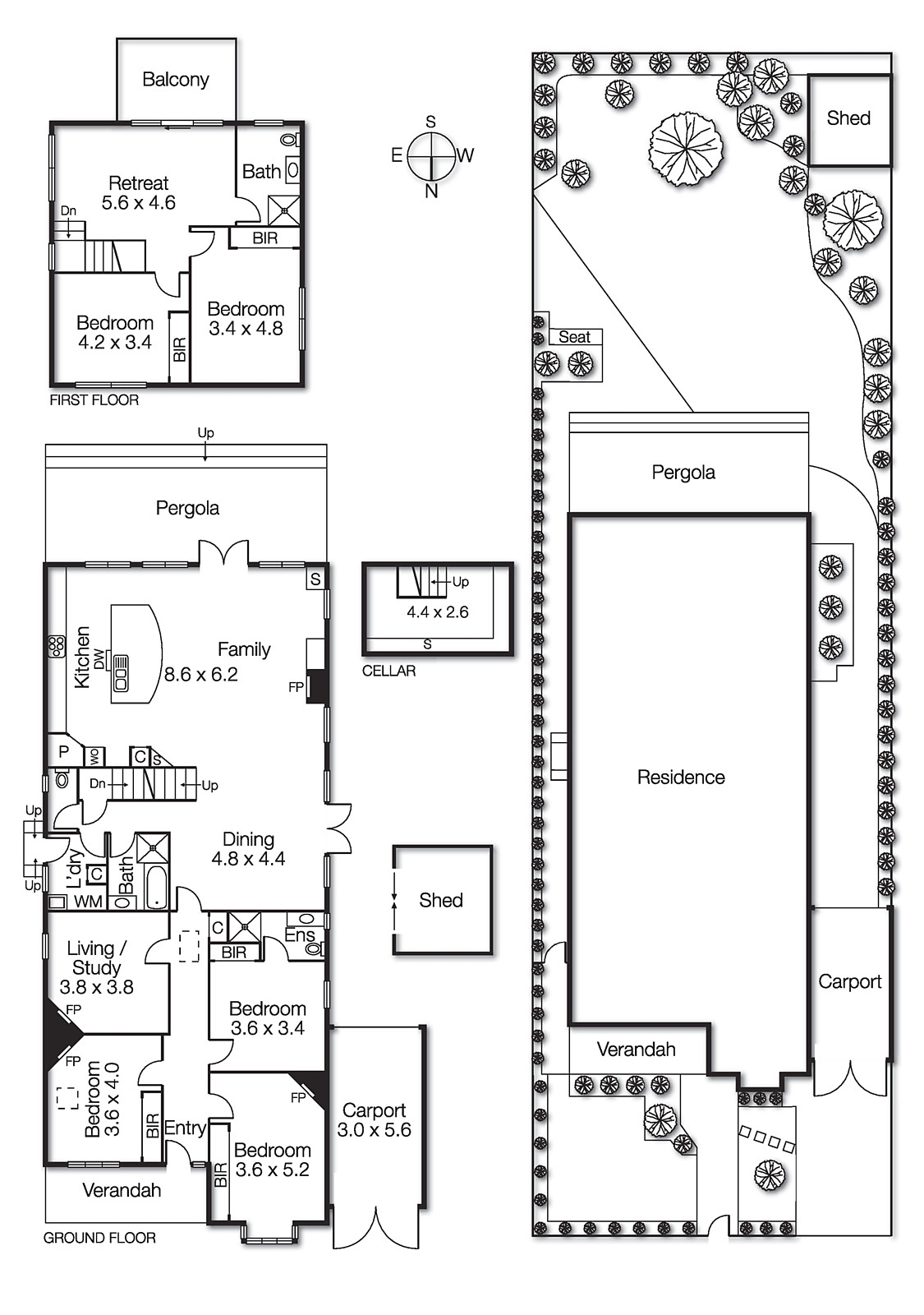
5
Bedroom
|
3
Bathroom
|
|
|
1
Parkings
|
536sqm
Land Area
|
|
Every Monday, keep up to date on Top End News from Hawthorn to Toorak to Brighton to Albert Park and all of Top End Melbourne.
;)
Twenty+ Ratings, Thirty Visits
We rated and visited 20 plus on market homes in the last 7 days (see below) – plus a handful of off-markets (not listed publicly, but available to clients). ...
;)
A Question of Fairness: Underquoting, Young Agents, and the Need for Context
Let me be absolutely clear from the outset: I oppose underquoting.
;)
Sellers — James Buy-Sell Advocates: 1-2-3
1. Reality Check
Multi-agent price read, comps, and risk map. No spin before an EOI.
2. Quiet Test (7–14 days)
Controlled off-market campaign to ...
Interactive Map of home bought and sold by James Buy Sell – click to explore.
Ali and Craig Tiley had relocated to Melbourne from the US and were unfamiliar with the local property market. They were looking for support to demystify the Australian way of buying and selling property which is very different to the US model they knew.
We developed a shortlist of potential homes and a buy recommendation. By encouraging them to look beyond initial impressions and consider the inherent value of the home they chose to purchase, Ali and Craig were able to buy into a premium Brighton location two minutes from the action.
Read more testimonials here