

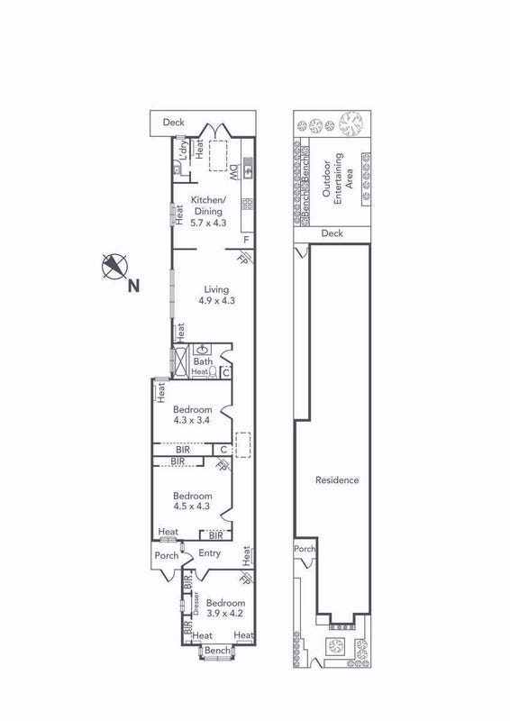
| 3 Bedroom | 1 Bathroom | |
| 0 Parkings | 
                                                                    242sqm
                                                             Land Area | |
Every Monday, keep up to date on Top End News from Hawthorn to Toorak to Brighton to Albert Park and all of Top End Melbourne.
;)
Executive Summary
The Melbourne top-end market has shifted—four up periods in 2025.
Prices have improved, but not exploded.
Sellers who price correctly are attracting real ...
;)
Discover how to create a great period home renovation with smart decisions and long-term thinking for exceptional results.
;)
Explore effective strategies for Benchmarking Great Homes for Value in the housing market and make informed decisions.
Interactive Map of home bought and sold by James Buy Sell – click to explore.
Ali and Craig Tiley had relocated to Melbourne from the US and were unfamiliar with the local property market. They were looking for support to demystify the Australian way of buying and selling property which is very different to the US model they knew.
We developed a shortlist of potential homes and a buy recommendation. By encouraging them to look beyond initial impressions and consider the inherent value of the home they chose to purchase, Ali and Craig were able to buy into a premium Brighton location two minutes from the action.
Read more testimonials here